APARTMENT
Artiza Uenoge.
Bien en courtage
L'outil de traduction est utilisé pour une partie ou la totalité du texte.
Dernier mis à jours 2026-03-22 14:36
Aperçu du logement
Accès
- Adresse 4 Uenoge, Setagaya-ku, Tokyo
-
Station1:
Tokyu-Oimachi line /
5 minute à pied jusqu'à la station KaminogeStation
Station2: Tokyu-Oimachi line / 17 minute à pied jusqu'à la station Futako TamagawaStation
Station3: Tokyu-Denentoshi line / 17 minute à pied jusqu'à la station Futako TamagawaStation
Réductions et offres spéciales disponibles
Vérifiez vos PAO points(*Login nécessaire)
Cette propriété n'est pas disponible pour les nouveaux membres smart. Le Plan FIX ne peut pas être utilisé dans cette propriété Les PAO points ne peuvent pas être utilisés dans cette propriété
Paiement initial et conditions
Informations sur les constructions et la gestion
- Aperçu du bâtiment 5Etages Année de construction:2024/10 Parking Oui* en pleine charge
- Environnements
- Numéro de gestion propre 391511
Installations communes
Équipements d'espaces communs
Équipement de sécurité
Installations extérieures
Disponibilité des chambres
0101 |
| Monthly fee | Loyer | ¥126,000 | |
|---|---|---|---|
| Charges・Frais de gestion | ¥15,000 | ||
| Premier Desk 2 ans (TTC) | 22,000yens | Frais de nettoyage de la chambre au moment de la signature du contrat (taxes incluses) | 66,000yens |
| Frais de courtage | 1.1 mois de loyer | ||
| Société de garantie |
Inscription requise Carte Epos |
||
| Frais de remplacement des serrures | 38,500yens | ||
| Estimation des frais initiaux |
¥547,100
※)Estimation basée sur une date de début de contrat au premier jour du mois. ※)Les frais liés à la société de garantie ne sont pas inclus. |
||
| Durée du contrat | 2 ans et 0 mois. | ||
| Remarques | Artiza Uenoge : idéalement situé à proximité de la gare de Uenoge. Une boîte de livraison se trouve dans l'espace commun, ce qui vous évite de rentrer tôt pour recevoir vos colis. Il y a beaucoup d'espace de rangement, y compris des boîtes à chaussures et des armoires, ce qui vous permet d'utiliser l'espace de façon spacieuse. La propriété est livrée avec une place de parking pour les vélos. Pourquoi ne pas trouver une belle chambre qui égayera votre quotidien ? Notre société, bien implantée dans le quartier de Setagaya et dans le quartier d'Uenoge, vous apportera tout son soutien dans votre recherche de logement. | ||
- Homme/Femme
Lumière du soleil/éclairage
Orientation des fenêtres:Sud-Est
Localisation
-
Chambre d'angle
Équipements sanitaires
-
Toilettes
-
Bathroom
-
Séparation WC et Salle de bains
-
Washlet
-
Bassin séparé
Appareils et équipements ménagers
-
Climatiseur
Meubles
-
Plancher en bois
-
Meuble de rangement
Internet
-
Internet disponible
- Frais d'accès à Internet : gratuit
0105 |
| Monthly fee | Loyer | ¥116,000 | |
|---|---|---|---|
| Charges・Frais de gestion | ¥15,000 | ||
| Premier Desk (2 ans/taxes incluses) | 22,000yens | Frais de nettoyage de la chambre au moment de la signature du contrat (taxes incluses) | 60,500yens |
| Frais de courtage | 1.1 mois de loyer | ||
| Société de garantie |
Inscription requise Carte Epos |
||
| Frais de remplacement des serrures | 38,500yens | ||
| Estimation des frais initiaux |
¥510,600
※)Estimation basée sur une date de début de contrat au premier jour du mois. ※)Les frais liés à la société de garantie ne sont pas inclus. |
||
| Durée du contrat | 2 ans et 0 mois. | ||
| Remarques | Artiza Uenoge : idéal pour un nouveau logement dans le quartier de Setagaya. La propriété est dotée d'une boîte de livraison, ce qui vous permet de recevoir vos colis même lorsque vous n'êtes pas chez vous. Les installations dans les chambres sont très bien équipées avec un sèche-serviette, une salle de bains indépendante, etc. Si vous cherchez un logement avec des caractéristiques particulières, pourquoi ne pas nous laisser vous aider ? Nous vous fournissons une multitude d'informations sur les locations et sur la région, afin que vous puissiez être sûr d'être entre de bonnes mains. N'hésitez pas à nous contacter pour toute demande ou question. | ||
- Homme/Femme
Lumière du soleil/éclairage
Orientation des fenêtres:Ouest
Équipements sanitaires
-
Toilettes
-
Bathroom
-
Séparation WC et Salle de bains
-
Washlet
-
Bassin séparé
Appareils et équipements ménagers
-
Climatiseur
Meubles
-
Plancher en bois
-
Meuble de rangement
Installations extérieures
-
Balcon
Internet
-
Internet disponible
- Frais d'accès à Internet : gratuit
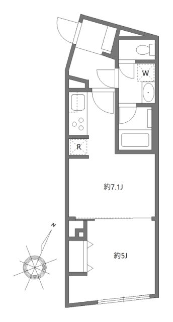
0204 | Bientôt Vacant 202603 ~
| Monthly fee | Loyer | ¥117,000 | |
|---|---|---|---|
| Charges・Frais de gestion | ¥15,000 | ||
| Premier Desk (2 ans/taxes incluses) | 22,000yens | Frais de nettoyage de la chambre au moment de la signature du contrat (taxes incluses) | 60,500yens |
| Frais de courtage | 1.1 mois de loyer | ||
| Société de garantie |
Inscription requise Carte Epos |
||
| Frais de remplacement des serrures | 38,500yens | ||
| Estimation des frais initiaux |
¥513,700
※)Estimation basée sur une date de début de contrat au premier jour du mois. ※)Les frais liés à la société de garantie ne sont pas inclus. |
||
| Durée du contrat | 2 ans et 0 mois. | ||
| Remarques | Artiza Uenoge est plein de points particuliers. Les dispositifs de sécurité comprennent un système de verrouillage automatique et un interphone TV, pour que vous puissiez vivre en paix. Les équipements des chambres comprennent une salle de bains avec sèche-linge et une salle d'eau avec lave-linge indépendant, ce qui rend les chambres confortables. Si vous cherchez un endroit où vivre en mettant l'accent sur l'accès aux transports, laissez-nous faire ! Vous trouverez ici de nombreuses informations sur les locations dans la région d'Uenoge. | ||
- Homme/Femme
Lumière du soleil/éclairage
Orientation des fenêtres:Ouest
Équipements sanitaires
-
Toilettes
-
Bathroom
-
Séparation WC et Salle de bains
-
Washlet
-
Bassin séparé
Appareils et équipements ménagers
-
Climatiseur
Meubles
-
Plancher en bois
-
Meuble de rangement
Installations extérieures
-
Balcon
Internet
-
Internet disponible
- Frais d'accès à Internet : gratuit
Plan
Carte
Compagnies
-
Nom de l’entreprise
OAKHOUSE as Agent
1-6, Shinogawamachi, Shinjuku-ku, Tokyo 162-0814
- Profil de l'entreprise OAKHOUSE will show you this apartment.
Logements à proximité
Sharehouses à Setagaya
APARTMENT
Ceribashi Sasazuka
¥79,000 - ¥82,000 Vacant
13.98㎡〜 / 2Etages
- Entièrement meublé
- Contrat longue durée : un an
- Pas de caution
- Pas de dépôt
- Pas de garant
APARTMENT
Manoir Bajikouen Himiko
¥210,000 - ¥210,000 Vacant
51.30㎡〜 / 5Etages
- Contrat longue durée : un an
- Pas de honoraires
- Pas de dépôt
- Pas de garant
APARTMENT
Artiza Jiyugaoka
¥160,000 - ¥222,500 Vacant
40.05㎡〜 / 5Etages
- Contrat longue durée : un an
- Pas de caution
- Pas de honoraires
- Pas de dépôt
- Pas de garant
Sharehouses à Kaminoge Station
APARTMENT
Dia Leixas Todoroki
¥171,000 - ¥171,000 Vacant
35.04㎡〜 / 4Etages
- Entièrement meublé
- Contrat longue durée : un an
- Pas de caution
- Pas de dépôt
- Pas de garant
APARTMENT
ARKMARK Todoroki
¥129,000 - ¥136,000 Bientôt Vacant
26.02㎡〜 / 7Etages
- Entièrement meublé
- Contrat longue durée : un an
- Pas de caution
- Pas de dépôt
- Pas de garant
Sharehouses à Tokyu-Oimachi line
3 Minami Senzoku, Ota-ku, Tokyo, bâtiment détaché n° 3
¥420,000 - ¥420,000 Vacant
96.67㎡〜 / 3Etages
- Contrat longue durée : un an
- Pas de dépôt
- Pas de garant
APARTMENT
Artiza Jiyugaoka
¥160,000 - ¥222,500 Vacant
40.05㎡〜 / 5Etages
- Contrat longue durée : un an
- Pas de caution
- Pas de honoraires
- Pas de dépôt
- Pas de garant
SHAREHOUSE
OAKHOUSE SHINAGAWA HATANODAI
¥55,000 - ¥70,000 Non Vacant
8.12㎡〜 / 2Etages / Tokyu-Ikegami line Hatanodai 1Minutes
- Mensuel
- Entièrement meublé
- Pas de caution
- Pas de honoraires
- Pas de dépôt
- Pas de garant
Sharehouses à Tokyu-Denentoshi line
SHAREHOUSE
MIYAMAEDAIRA TERRACE
¥65,000 - ¥71,000 Bientôt Vacant
12.01㎡〜 / 2Etages / Tokyu-Denentoshi line Miyamaedaira 7Minutes
- Mensuel
- Entièrement meublé
- Pas de caution
- Pas de honoraires
- Pas de dépôt
- Pas de garant
APARTMENT
Fino Shibuya.
¥236,000 - ¥236,000
54.84㎡〜 / 4Etages
- Contrat longue durée : un an
- Pas de dépôt
- Pas de garant
APARTMENT
Manoir Bajikouen Himiko
¥210,000 - ¥210,000 Vacant
51.30㎡〜 / 5Etages
- Contrat longue durée : un an
- Pas de honoraires
- Pas de dépôt
- Pas de garant
0 chambres trouvés.
Informations sur le quartier de Setagaya
Aperçu de l'arrondissement
Setagaya est un arrondissement spécial dans le sud ouest de Tokyo qui a une population de 900.000 personnes. C'est une zone très populaire avec des quartiers résidentiels dont la population ne fait qu'augmenter. Même s'il y a beaucoup de quartiers résidentiels, il y a des zones de shopping importantes comme Nikotama ou le quartier unique de Shimokitazawa, ainsi que Sakura-Shincho, Chitose-Karasuyama et Shimotakaido. Setagaya est connu comme un centre culturelle. La Carrot Tower de Sangenjaya organise de nombreuses expositions et il y a des théatres à Shimokitazawa.
L'arrondissement a également de nombreuses mesures sociales pour ses habitants comme des soins pour les accouchements ainsi que des aides pour élever les enfants ainsi que la création de nombreuses garderies et centre d'accueil. On travaille également sur les énergies renouvelables.
A voir
Il y a beaucoup de nature à Setagaya. Le parc olympique de Komazawa a un grand parc et un centre sportif et il y a également d'autres parcs à Setagaya. Il y a aussi de nombreuses allées avec des cerisiers. La vallée de Todoroki a une très belle cascade à quelques minutes de la station de Todoroki, très jolie à l'automne. Il y a de très beaux grands magasins à Nikotama tandis que Shimokita est plus alternatif avec ses friperies et ses cafés. Sangenjaya est un quartier dans lequel il est facile de vivre. Setagaya est très varié.
Lifestyle
Beaucoup de gens vivant à Setagaya travaillent dans d'autres arrondissement de Tokyo. La population est plus basse la journée. le matin, les lignes Odakyu, Denentoshi et Keio sont toujours bondées. Setagaya est l'un des arrondissements les plus grandissants de Tokyo. C'est un nom qui parle et qui fait beaucoup d'efforts envers ses habitants. Les prix des loyers augmentent de fait. Il y a également beaucoup de personnes agées et le gouvernement a prix des décisions pour aménager leur quotidien.
Recherche par gares à proximité
Résidences vues récemment




























































