APARTMENT
El Faro Komazawa Park I
Bien en courtage
L'outil de traduction est utilisé pour une partie ou la totalité du texte.
Dernier mis à jours 2026-05-06 23:53
Aperçu du logement
Accès
- Adresse 5 Komazawa, Setagaya-ku, Tokyo
-
Station1:
Tokyu-Denentoshi line /
13 minute à pied jusqu'à la station Komazawa DaigakuStation
Station2: Tokyu-Denentoshi line / 22 minute à pied jusqu'à la station Sakura ShimmachiStation
Réductions et offres spéciales disponibles
Vérifiez vos PAO points(*Login nécessaire)
Cette propriété n'est pas disponible pour les nouveaux membres smart. Le Plan FIX ne peut pas être utilisé dans cette propriété Les PAO points ne peuvent pas être utilisés dans cette propriété
Paiement initial et conditions
Informations sur les constructions et la gestion
- Aperçu du bâtiment 5Etages Année de construction:2023/09 Parking Non disponible néant
- Environnements
- Numéro de gestion propre 398654
Installations communes
Équipements d'espaces communs
Équipement de sécurité
Disponibilité des chambres
0103 | Bientôt Vacant 202605 ~
| Monthly fee | Loyer | ¥209,000 | |
|---|---|---|---|
| Charges・Frais de gestion | ¥15,000 | ||
| 111,760yens | |||
| Frais de courtage | 1.1 mois de loyer | ||
| Société de garantie |
Inscription requise |
||
| Frais de remplacement des serrures | 38,500yens | ||
| Estimation des frais initiaux |
¥850,160
※)Estimation basée sur une date de début de contrat au premier jour du mois. ※)Les frais liés à la société de garantie ne sont pas inclus. |
||
| Durée du contrat | 2 ans et 0 mois. | ||
| Remarques | |||
- Homme/Femme
-
Animaux domestiques autorisés
Lumière du soleil/éclairage
Orientation des fenêtres:Nord-ouest
Localisation
-
Chambre d'angle
Équipements sanitaires
-
Toilettes
-
Bathroom
-
Séparation WC et Salle de bains
-
Washlet
-
Bassin séparé
Appareils et équipements ménagers
-
Climatiseur
Meubles
-
Plancher en bois
-
Meuble de rangement
Internet
-
Internet disponible
- Frais d'accès à Internet : gratuit
エンターテイメント設備(翻訳)
-
CATV (télévision par câble)
0302 |
| Monthly fee | Loyer | ¥235,000 | |
|---|---|---|---|
| Charges・Frais de gestion | ¥15,000 | ||
| Premier Desk (2 ans/taxes incluses) | 22,000yens | Frais de nettoyage de la chambre au moment de la signature du contrat (taxes incluses) | 143,000yens |
| Frais de courtage | 1.1 mois de loyer | ||
| Société de garantie |
Inscription requise Carte Epos |
||
| Frais de remplacement des serrures | 38,500yens | ||
| Estimation des frais initiaux |
¥962,000
※)Estimation basée sur une date de début de contrat au premier jour du mois. ※)Les frais liés à la société de garantie ne sont pas inclus. |
||
| Durée du contrat | 2 ans et 0 mois. | ||
| Remarques | La sécurité est excellente grâce à l'interphone TV et aux serrures automatiques. Les espaces de rangement comprennent un placard et une boîte à chaussures, utiles pour ranger les vêtements et les objets de première nécessité. Les appartements de type 2LDK sont recommandés pour les familles. Notre équipe vous aidera dans votre recherche d'un logement dans le quartier de Setagaya. Tout d'abord, veuillez nous faire part de vos besoins. Sur cette base, nous vous présenterons un logement qui vous conviendra. | ||
- Homme/Femme
-
Animaux domestiques autorisés
Lumière du soleil/éclairage
Orientation des fenêtres:Nord-est
Équipements sanitaires
-
Toilettes
-
Bathroom
-
Séparation WC et Salle de bains
-
Washlet
-
Bassin séparé
Appareils et équipements ménagers
-
Climatiseur
Meubles
-
Plancher en bois
-
Meuble de rangement
Internet
-
Internet disponible
- Frais d'accès à Internet : gratuit
エンターテイメント設備(翻訳)
-
CATV (télévision par câble)
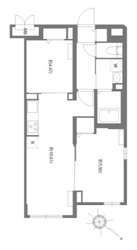
Plan
Carte
Compagnies
-
Nom de l’entreprise
OAKHOUSE as Agent
1-6, Shinogawamachi, Shinjuku-ku, Tokyo 162-0814
- Profil de l'entreprise OAKHOUSE will show you this apartment.
Logements à proximité
Sharehouses à Setagaya
APARTMENT
¥95,000 - ¥95,000 Vacant
12.68㎡〜 / 2Etages
APARTMENT
Casa Premier Daita
¥138,000 - ¥157,000 Vacant
31.46㎡〜 / 3Etages
- Pas de caution
- Pas de honoraires
APARTMENT
Prime Garden Sakurajosui
¥56,000 - ¥78,000 Vacant
15.06㎡〜 / 3Etages
- Pas de caution
- Pas de honoraires
Sharehouses à Komazawa Daigaku Station
APARTMENT
¥147,000 - ¥147,000 Bientôt Vacant
26.66㎡〜 / 15Etages
- Entièrement meublé
- Pas de caution
APARTMENT
SUN CITY TOWA
¥116,000 - ¥116,000 Non Vacant
19.67㎡〜 / 10Etages / Tokyu-Denentoshi line Komazawa Daigaku 2Minutes
- Mensuel
- Entièrement meublé
- Pas de caution
- Pas de honoraires
Sharehouses à Sakura Shimmachi Station
APARTMENT
CADENZA SAKURA SHINMACHI
¥0 - ¥0 Non Vacant
3Etages / Tokyu-Denentoshi line Sakurashimmachi 1Minutes
APARTMENT
CADENZA SAKURA SHINMACHI
¥176,000 - ¥176,000 Non Vacant
30.81㎡〜 / 5Etages / Tokyu-Denentoshi line Sakurashimmachi 5Minutes
- Mensuel
- Entièrement meublé
- Pas de caution
- Pas de honoraires
Sharehouses à Tokyu-Denentoshi line
APARTMENT
Venus Shibuya
¥327,000 - ¥327,000 Vacant
44.34㎡〜 / 12Etages / TokyoMetro-Ginza line Shibuya 7Minutes
- Mensuel
- Entièrement meublé
- Pas de caution
- Pas de honoraires
APARTMENT
Genovia Futago Shinchi
¥146,000 - ¥148,000 Vacant
25.35㎡〜 / 5Etages
- Entièrement meublé
- Pas de caution
SHAREHOUSE
OAKHOUSE IKEJIRIOHASHI
¥63,000 - ¥77,000 Non Vacant
6.70㎡〜 / 4Etages / Tokyu-Denentoshi line Ikejiri Ohashi 1Minutes
- Mensuel
- Entièrement meublé
- Pas de caution
- Pas de honoraires
0 chambres trouvés.
Informations sur le quartier de Setagaya
Aperçu de l'arrondissement
Setagaya est un arrondissement spécial dans le sud ouest de Tokyo qui a une population de 900.000 personnes. C'est une zone très populaire avec des quartiers résidentiels dont la population ne fait qu'augmenter. Même s'il y a beaucoup de quartiers résidentiels, il y a des zones de shopping importantes comme Nikotama ou le quartier unique de Shimokitazawa, ainsi que Sakura-Shincho, Chitose-Karasuyama et Shimotakaido. Setagaya est connu comme un centre culturelle. La Carrot Tower de Sangenjaya organise de nombreuses expositions et il y a des théatres à Shimokitazawa.
L'arrondissement a également de nombreuses mesures sociales pour ses habitants comme des soins pour les accouchements ainsi que des aides pour élever les enfants ainsi que la création de nombreuses garderies et centre d'accueil. On travaille également sur les énergies renouvelables.
A voir
Il y a beaucoup de nature à Setagaya. Le parc olympique de Komazawa a un grand parc et un centre sportif et il y a également d'autres parcs à Setagaya. Il y a aussi de nombreuses allées avec des cerisiers. La vallée de Todoroki a une très belle cascade à quelques minutes de la station de Todoroki, très jolie à l'automne. Il y a de très beaux grands magasins à Nikotama tandis que Shimokita est plus alternatif avec ses friperies et ses cafés. Sangenjaya est un quartier dans lequel il est facile de vivre. Setagaya est très varié.
Lifestyle
Beaucoup de gens vivant à Setagaya travaillent dans d'autres arrondissement de Tokyo. La population est plus basse la journée. le matin, les lignes Odakyu, Denentoshi et Keio sont toujours bondées. Setagaya est l'un des arrondissements les plus grandissants de Tokyo. C'est un nom qui parle et qui fait beaucoup d'efforts envers ses habitants. Les prix des loyers augmentent de fait. Il y a également beaucoup de personnes agées et le gouvernement a prix des décisions pour aménager leur quotidien.
Recherche par gares à proximité
Tokyu-Denentoshi line(479)
Ikejiri Ohashi Sangen Jaya Komazawa Daigaku Sakura Shimmachi Yoga
Résidences vues récemment

























































