APARTMENT
El Faro Komazawa Koen I
Brokered Property
Translation tool is used for part or all of the text.
Last updated 2025-12-05 18:51
Property Overview
Access
- Address 5 Komazawa, Setagaya-ku, Tokyo
-
Station1:
Tokyu-Denentoshi line /
13 min walk to Komazawa DaigakuStation
Station2: Tokyu-Denentoshi line / 22 min walk to Sakura ShimmachiStation
Available discounts and special offers
Check your available PAO(※Login necessary)
Smart Membership not available for this property. The FIX plan cannot be used at this property PAO points cannot be used at this property
Initial payment and terms
Building and management information
- Building outline 5-story building Year Built:2023/09 Parking Not available nil
- Surroundings
- In-house management number 354875
Shared facilities
Facilities in the shared spaces
Security measures
Room Availability
0102 |
| Monthly fee | Rent | ¥222,000 | |
|---|---|---|---|
| Maintenance fee・Management fee | ¥15,000 | ||
| Premier Desk (tax included/2 years) | 16,500yen | Room cleaning fee at the time of contract (tax included) | 126,500yen |
| Brokerage fees | 1.1 months of rent. | ||
| Guarantor company |
Subscription required Epos Card The screening will be done by Epos Room ID. Room ID] 50% of monthly gross rent/monthly guarantee fee, 1.5% of monthly gross rent/10,000 yen per year ●When using Epos Global Plan: 100% of monthly gross rent, monthly gross rent |
||
| Key replacement fee | 38,500yen | ||
| Estimated initial cost |
¥899,700
※)Estimate based on a contract date of the first day of the month. ※)The guarantor fee for the guarantor company is not included. |
||
| Contract period | 2 year and 0 month | ||
| Remarks | There is plenty of storage space, including a closet and a shoe box, making it easy and convenient to organize your clothes and footwear. Room facilities include a bathroom dryer and a separate washroom, making the room comfortable and easy to spend time in. A parcel delivery box is provided so that you can receive packages even when you are not at home, saving you the trouble of having to adjust your delivery time. Enjoy your residence. This way, you will lead a more comfortable life. We will search for a comfortable home together with you. | ||
- Man / Woman
- Foreign Residents Allowed
-
Pet Friendly
Sunlight
Facing window:East
Water facilities
-
Toilet
-
Bathroom
-
Separated bath and toilet
-
Washlet
-
Separate basin
Household appliances
-
Air conditioner
Furniture
-
Wooden flooring
-
Storage
Internet
-
Internet available
- Internet usage fee: free
エンターテイメント設備(翻訳)
-
CATV (cable TV)
0202 | Vacancy
| Monthly fee | Rent | ¥226,000 | |
|---|---|---|---|
| Maintenance fee・Management fee | ¥15,000 | ||
| Premier Desk (2 years / tax included) | 16,500yen | Room cleaning fee at the time of contract (tax included) | 126,500yen |
| Brokerage fees | 1.1 months of rent. | ||
| Guarantor company |
Subscription required Epos Card The screening will be done by Epos Room ID. Room ID] 50% of monthly gross rent/monthly guarantee fee, 1.5% of monthly gross rent/10,000 yen per year ●When using Epos Global Plan: 100% of monthly gross rent, monthly gross rent |
||
| Key replacement fee | 38,500yen | ||
| Estimated initial cost |
¥912,100
※)Estimate based on a contract date of the first day of the month. ※)The guarantor fee for the guarantor company is not included. |
||
| Contract period | 2 year and 0 month | ||
| Remarks | Room facilities are fully equipped with a bathroom dryer and a separate washroom. A delivery box is provided in the common area, so you can receive your packages whenever you like. Security is also excellent with auto-locks and TV intercom systems. Why don't you look for a room that matches your particular needs near Setagaya-ku and Komazawa University? We will do our best to support your room search. | ||
- Man / Woman
-
Pet Friendly
Sunlight
Facing window:East
Water facilities
-
Toilet
-
Bathroom
-
Separated bath and toilet
-
Washlet
-
Separate basin
Household appliances
-
Air conditioner
Furniture
-
Wooden flooring
-
Storage
Internet
-
Internet available
- Internet usage fee: free
エンターテイメント設備(翻訳)
-
CATV (cable TV)
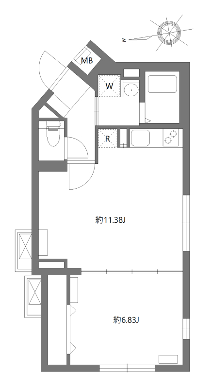
Diagram
Map
Management company
-
Company name
OAKHOUSE as Agent
1-6, Shinogawamachi, Shinjuku-ku, Tokyo 162-0814
- Corporate Use OAKHOUSE will show you this apartment.
Nearby Houses
Setagaya share houses
APARTMENT
Mobire Todoroki
2 Noge, Setagaya-ku, Tokyo
Move in conditions:
Female Male
- No security deposit
- No Guarantor Deposit
- No guarantor
- Foreign Residents Allowed
- No furnitures and appliances
- Minimum contract period: 1 year
Bicycle parking
Scooter and motorcycle parking
¥51,000 - ¥60,000 Vacancy
APARTMENT
Sera.U Sasazuka
5 Kitazawa, Setagaya-ku, Tokyo
Move in conditions:
Female Male
- No Key Money
- No security deposit
- No Guarantor Deposit
- No guarantor
- No furnitures and appliances
- Minimum contract period: 1 year
Bicycle parking
¥60,000 - ¥69,000 Vacancy
APARTMENT
Saint-Emilion Setagaya Uenoge
2 Seta, Setagaya-ku, Tokyo
Move in conditions:
Female Male
- No security deposit
- No Guarantor Deposit
- No guarantor
- Foreign Residents Allowed
- No furnitures and appliances
- Minimum contract period: 1 year
Bicycle parking
Delivery box
¥59,000 - ¥70,000 Vacancy
Komazawa Daigaku Station share houses
APARTMENT
El Faro Komazawa-Koen II
5 Komazawa, Setagaya-ku, Tokyo
Move in conditions:
Female Male
- No Key Money
- No security deposit
- No Guarantor Deposit
- No guarantor
- No furnitures and appliances
- Minimum contract period: 1 year
Delivery box
Private room with bathroom,
kitchen, or toilet facilities
¥98,000 - ¥114,000 Vacancy
APARTMENT
Le Berceau Komazawa
4 Komazawa, Setagaya-ku, Tokyo
Move in conditions:
Female Male
- No Key Money
- No security deposit
- No Guarantor Deposit
- No guarantor
- Foreign Residents Allowed
- No furnitures and appliances
- Minimum contract period: 1 year
Delivery box
Private room with bathroom,
kitchen, or toilet facilities
¥69,800 - ¥79,000 Vacancy
APARTMENT
SUN CITY TOWA
A fully furnished apartment is now available、located a 2-minute walk f……
Tokyo-to Setagaya-ku Kamiuma
Tokyu-Denentoshi line / Komazawa Daigaku 2minutes
Move in conditions:
Female Male
- No Key Money
- No security deposit
- No Guarantor Deposit
- No brokerage Fee
- No guarantor
- No guarantor company
- Foreign Residents Allowed
- Furnished
- Monthly
Bicycle parking
Delivery box
within 5 minutes to station
Private room with bathroom,
kitchen, or toilet facilities
¥116,000 - ¥116,000 Full
Sakura Shimmachi Station share houses
APARTMENT
OAK TERRACE SAKURA SHINMACHI
Good for couples and friends! 5 min walk from Sakura Shinmachi stn on ……
Tokyo-to Setagaya-ku Sakura-shinmachi
Tokyu-Denentoshi line / Sakurashimmachi 5minutes
Move in conditions:
Female Male
- No Key Money
- No security deposit
- No Guarantor Deposit
- No brokerage Fee
- No guarantor
- No guarantor company
- Foreign Residents Allowed
- Non-Smoking house
- Furnished
- Monthly
Bicycle parking
Delivery box
within 5 minutes to station
Garden, rooftop, terrace
Non-Smoking house
Rooms for 2 or more available
Private room with bathroom,
kitchen, or toilet facilities
¥166,000 - ¥166,000 Vacancy soon
APARTMENT
El Faro Komazawa-Koen II
5 Komazawa, Setagaya-ku, Tokyo
Move in conditions:
Female Male
- No Key Money
- No security deposit
- No Guarantor Deposit
- No guarantor
- No furnitures and appliances
- Minimum contract period: 1 year
Delivery box
Private room with bathroom,
kitchen, or toilet facilities
¥98,000 - ¥114,000 Vacancy
APARTMENT
Frontier Sakurashinmachi
3 Shinmachi, Setagaya-ku, Tokyo
Move in conditions:
Female Male
- No Guarantor Deposit
- No guarantor
- No furnitures and appliances
- Minimum contract period: 1 year
Private room with bathroom,
kitchen, or toilet facilities
¥81,000 - ¥81,000
Tokyu-Denentoshi line share houses
APARTMENT
MY CASTLE SHIBUYA JP
My Castle Shibuya JP- 8-min walk from Shibuya stn or 4-min from Inokas……
Tokyo-to Shibuya-ku Maruyama-cho
Keio-Inokashira line / Shinsen 4minutes
Move in conditions:
Female Male
- No Key Money
- No security deposit
- No Guarantor Deposit
- No brokerage Fee
- No guarantor
- No guarantor company
- Foreign Residents Allowed
- Furnished
- Monthly
Bicycle parking
Scooter and motorcycle parking
within 5 minutes to station
Rooms for 2 or more available
Private room with bathroom,
kitchen, or toilet facilities
¥143,000 - ¥143,000 Full
APARTMENT
HEBEL STAY DAIKANYAMA
Brand new service residence in Daikanyama. 6min walk to Daikanyama or ……
Tokyo-to Shibuya-ku Sarugaku-cho
TokyoMetro-Ginza line / Shibuya 7minutes
Move in conditions:
Female Male
- No Key Money
- No security deposit
- No Guarantor Deposit
- No brokerage Fee
- No guarantor
- No guarantor company
- Foreign Residents Allowed
- Furnished
- Monthly
Bicycle parking
Scooter and motorcycle parking
Delivery box
Garden, rooftop, terrace
Rooms for 2 or more available
Private room with bathroom,
kitchen, or toilet facilities
¥333,000 - ¥570,000 Vacancy
-
Gender:
FemaleMale
-
Nationality:
Foreigner Japanese
-
Age:
10~29 30~49 Over 50
APARTMENT
Towa Hightown Kajigaya
1, Sue Naga, Kawasaki-shi, Kanagawa, Japan
Move in conditions:
Female Male
- No Guarantor Deposit
- No guarantor
- No furnitures and appliances
- Minimum contract period: 1 year
Bicycle parking
Scooter and motorcycle parking
Delivery box
¥200,000 - ¥200,000
0 rooms found.
Area information of Setagaya
Area outline
Setagaya is a special ward in the southwest of Tokyo that has a population of 900,000 people. It is a popular area with many high-end residential areas, and the population is only increasing.
Even though it has many residential areas, it also maintains good shopping areas, such as swanky Futago-Tamagawa or the unique personality of the area of Shimo-Kitazawa, not to mention Sakura-Shincho, Chitose-Karasuyama, and Shimotakaido.
Setagaya is known as a cultural center. Carrot Tower in Sangenjaya is host to many arts businesses, and Shimokitazawa has theaters for stage shows.
Setagaya is often on the forefront of social welfare. It has some of the best prenatal care, as well as measures to help raise children, such as creating more daycare centers. It also creates much renewable energy.
Things to see
Setagaya has a lot of nature. Komazawa Olympic park is a huge park and sports center, and there are many other parks in Setagaya as well. There are also many lanes lined with sakura trees. Todoroki valley also has a beautiful waterfall only a few minutes from Todoroki station, and it is beautiful in the fall.
Futago-Tamagawa has department stores and shopping malls, Shimo-Kitazawa has hip shops and cafes, and Sangenjaya is a hidden place great for shopping and living: Setagaya has many faces.
Lifestyle
Many people live in Setagaya and commute to other areas of Tokyo. Its daytime population is actually lower. In the morning, the Odakyu line, Den-en-toshi line, Keio lines are crowded, but this has seen change in recent years.
Setagaya is one of the fastest growing wards in Tokyo. It has brand power, and great child-raising environments. As a result, prices and rents are rising. On the other hand, it is also seeing an increase in older people, so the government has been putting effort toward accommodating them as well.
Search by Nearby Stations
Tokyu-Denentoshi line(445)
Ikejiri Ohashi Sangen Jaya Komazawa Daigaku Sakura Shimmachi Yoga
Recently viewed properties
-
APARTMENT
Dura Casa MIHORI
Move in conditions: Female Male Foreigner¥104,000 - ¥104,000
-
APARTMENT
Meikus Design Shinjuku Ochiai
Move in conditions: Female Male Foreigner¥136,000 - ¥139,000
-
APARTMENT
Repure Ikegami Residence
Move in conditions: Female Male Foreigner¥115,000 - ¥146,000
-
APARTMENT
S-lead Osaka Dome City
Move in conditions: Female Male Foreigner¥76,000 - ¥80,000
-
SHAREHOUSE
FLORA EBISU
TokyoMetro-Hibiya line / Ebisu(Tokyo) 8minutes
Move in conditions: Female Foreigner¥91,000 - ¥112,000




























































