APARTMENT
ザハウス祐天寺
仲介物件
文章の一部また全部に機械翻訳を使用しています。
最終更新日 2026-02-04 22:35
物件概要
アクセス
利用可能プラン
当物件はスマート会員がご利用頂けません。 当物件はFIXプラン会員がご利用頂けません。 当物件はPAOがご利用いただけません。
初期費用と条件
建物・周辺・管理情報
- 建物概要 RC 4階建て 建築年月:2024/01 駐車場 無
- 周辺環境
- 自社管理番号 391496
共用設備
空室情報
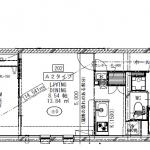
0202 | 空室
| 毎月費用 | 賃料 | ¥226,000 | |
|---|---|---|---|
| 共益費・管理費 | ¥20,000 | ||
| 敷金 | 1ヶ月 | プレミアデスク(税込/2年) | 22,000円 |
| 仲介手数料 | 賃料の1.1ヶ月分 | ||
| 保証会社 |
加入要 エポスカード ※エポス ルームIDからの審査になります。 【ルームID】月額総賃料の50%/月次保証料、月額総賃料の1.5%/1年毎10,000円 【アーク賃貸保証】月額総賃料の40%/次年度以降10,000円※引 |
||
| 鍵交換費用 | 38,500円 | ||
| 初期費用概算 |
¥1,027,100
※)契約日が月初1日の場合の概算です。 ※)保証会社への保証料は含まれていません |
||
| 契約期間 | 2年0月 | ||
| 備考 | こだわりポイント満載のザハウス祐天寺。荷物が受け取れないときに一時的に保管できる宅配ボックスは、一人暮らしの方や在宅勤務の方向きの設備です。駅から徒歩13分のところにある物件はいかがでしょうか。当社スタッフの豊富な経験から、住まい探しに関するお問い合わせを受け付けております。お客様のニーズにお応えできるよう努めて参りますので、まずはお気軽にご連絡下さい。 | ||
- 男性/女性
-
ペット可
採光・日当たり
窓向き:西
ロケーション
-
角部屋
水回り
-
トイレ
-
バス
-
バス・トイレ別
-
温水洗浄便座
-
洗面所独立
家電・機器
-
冷暖房
家具
-
フローリング
-
収納
インターネット
-
インターネット対応
- インターネット使用料:なし
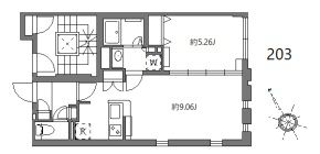
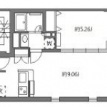
0203 | 空室
| 毎月費用 | 賃料 | ¥223,000 | |
|---|---|---|---|
| 共益費・管理費 | ¥20,000 | ||
| 敷金 | 1ヶ月 | プレミアデスク(税込/2年) | 22,000円 |
| 仲介手数料 | 賃料の1.1ヶ月分 | ||
| 保証会社 |
加入要 エポスカード ※エポス ルームIDからの審査になります。 【ルームID】月額総賃料の50%/月次保証料、月額総賃料の1.5%/1年毎10,000円 【アーク賃貸保証】月額総賃料の40%/次年度以降10,000円※引 |
||
| 鍵交換費用 | 38,500円 | ||
| 初期費用概算 |
¥1,014,800
※)契約日が月初1日の場合の概算です。 ※)保証会社への保証料は含まれていません |
||
| 契約期間 | 2年0月 | ||
| 備考 | こだわりポイント満載のザハウス祐天寺。セキュリティ面は、オートロック・TVインターホンなど充実しているので安心して生活できます。共用部には宅配ボックスを備え付けているため、対面で荷物を受け取る必要がありません。角部屋なので生活騒音の心配も軽減されます。ワクワク、ドキドキの新生活。まずは当社で世田谷区や祐天寺付近のお部屋探しをしましょう。好みのお部屋がきっと見つかります。 | ||
- 男性/女性
-
ペット可
採光・日当たり
窓向き:東
ロケーション
-
角部屋
水回り
-
トイレ
-
バス
-
バス・トイレ別
-
温水洗浄便座
-
洗面所独立
家電・機器
-
冷暖房
家具
-
フローリング
-
収納
インターネット
-
インターネット対応
- インターネット使用料:なし
図面
地図
運営会社
-
会社名
オークハウス仲介担当
東京都新宿区新小川町1-6
- 会社概要 こちらの建物はオークハウスがご案内致します。
近隣の物件
世田谷区のシェアハウス
APARTMENT
アルティザ上野毛
¥104,000 - ¥124,000 空室
27.31㎡〜 / 5階建て / 東急大井町線 上野毛 5分
- 長期契約向け:1年
- 敷金なし
- 礼金なし
- 保証金なし
- 保証人不要
APARTMENT
アトラスシティ千歳烏山グランスイート 杜ノ棟
¥300,000 - ¥300,000 空室
71.67㎡〜 / 4階建て
- 長期契約向け:1年
- 保証金なし
- 保証人不要
APARTMENT
サンフレンズ経堂
¥65,000 - ¥70,000 空室
15.80㎡〜 / 3階建て
- 長期契約向け:1年
- 敷金なし
- 保証金なし
- 保証人不要
祐天寺駅のシェアハウス
APARTMENT
LEGALAND祐天寺
¥138,000 - ¥138,000 空室予定
22.01㎡〜 / 4階建て
- 家具・家電付き
- 長期契約向け:1年
- 敷金なし
- 保証金なし
- 保証人不要
APARTMENT
ソラシアレジデンス学芸大学Ⅱ
¥121,000 - ¥260,000 空室
20.21㎡〜 / 3階建て
- 長期契約向け:1年
- 敷金なし
- 礼金なし
- 保証金なし
- 保証人不要
APARTMENT
ビバリーホームズ目黒鷹番
¥154,000 - ¥154,000 空室予定
30.08㎡〜 / 5階建て
- 家具・家電付き
- 長期契約向け:1年
- 敷金なし
- 保証金なし
- 保証人不要
学芸大学駅のシェアハウス
APARTMENT
LEGALAND祐天寺
¥138,000 - ¥138,000 空室予定
22.01㎡〜 / 4階建て
- 家具・家電付き
- 長期契約向け:1年
- 敷金なし
- 保証金なし
- 保証人不要
APARTMENT
ソラシアレジデンス学芸大学Ⅱ
¥121,000 - ¥260,000 空室
20.21㎡〜 / 3階建て
- 長期契約向け:1年
- 敷金なし
- 礼金なし
- 保証金なし
- 保証人不要
APARTMENT
ルーブル学芸大学六番館
¥78,000 - ¥118,000 空室
21.60㎡〜 / 8階建て
- 家具・家電付き
- 長期契約向け:1年
- 敷金なし
- 保証金なし
- 保証人不要
東急東横線のシェアハウス
APARTMENT
ソラシアレジデンス学芸大学Ⅱ
¥121,000 - ¥260,000 空室
20.21㎡〜 / 3階建て
- 長期契約向け:1年
- 敷金なし
- 礼金なし
- 保証金なし
- 保証人不要
グラン日吉
¥47,000 - ¥128,000 空室
8.82㎡〜 / 4階建て / 東急目黒線 日吉(神奈川) 21分
- マンスリー
- 家具・家電付き
- 敷金なし
- 礼金なし
- 保証金なし
- 保証人不要
APARTMENT
パークウェル田園調布
¥55,000 - ¥83,000 空室
18.13㎡〜 / 5階建て
- 家具・家電付き
- 長期契約向け:1年
- 敷金なし
- 保証金なし
- 保証人不要
-
外観 外はこのようになっています
-
外観 外観もきれいです
-
エントランス 清潔なエントランスです
-
エントランス 清潔なエントランスです
-
エントランス エントランスです
-
エントランス 落ち着いたエントランスです
0202
-
シャワーを浴びることができます
![]()
-
玄関 明るい玄関です
![]()
-
居間 こちらの居間で趣味の時間をお楽しみください
![]()
-
居間 ゆったり過ごせるリビングです
![]()
-
居間 リビングです
![]()
-
キッチン キッチンです
![]()
-
風呂 ゆったり過ごせるお風呂です
![]()
-
トイレ 清潔感のあるトイレです
![]()
-
収納 便利な収納スペースです
![]()
-
設備
![]()
-
設備
![]()
-
設備
![]()
-
設備
![]()
-
設備
![]()
-
設備
![]()
-
設備
![]()
-
バルコニー バルコニー付きです
![]()
-
その他画像 セキュリティ
![]()
-
その他画像 その他
![]()
-
その他画像 その他共有部分
![]()
-
その他画像 その他
![]()
0203
-
さっと体を洗えるシャワールーム付です
![]()
-
玄関 落ち着いた玄関です
![]()
-
居間 ゆったりとした居間です
![]()
-
居間 ゆったり過ごせるリビングです
![]()
-
居間 おしゃれなリビングです
![]()
-
キッチン きれいなキッチンです
![]()
-
風呂 コンパクトで使いやすいお風呂です
![]()
-
トイレ 落ち着いたトイレです
![]()
-
収納 収納豊富です
![]()
-
設備
![]()
-
設備
![]()
-
設備
![]()
-
設備
![]()
-
設備
![]()
-
設備
![]()
-
設備
![]()
-
バルコニー 陽当たり良好なバルコニーです
![]()
-
その他画像 セキュリティ
![]()
-
その他画像 その他
![]()
-
その他画像 その他共有部分
![]()
-
その他画像 その他
![]()
0部屋がヒットしました
世田谷区のエリア情報
エリアの概要
東京都世田谷区は人口約90万人の東京都南西部にある特別区の1つです。東京都内でも有数の高級住宅街がいくつもある人気の地域で、人口が急激に増えています。
住宅地が多い一方で商店街も充実しており、大規模商業施設のある二子玉川や個人店の充実した下北沢、庶民的な商店街の広がる桜新町や千歳烏山、下高井戸などがあります。
東京都世田谷区は文化の発信している街でもあります。三軒茶屋にあるキャロットタワーでは多くの文化・芸術事業が行われておりますし、前述した下北沢には多くの小劇場があり、劇の街としての側面も有しています。
行政分野についてですが、東京都世田谷区役所は全国地方自治体の先駆けとなる政策を実践していることで有名です。最近では特に妊娠時からのケアに取り組んでおり、子育てに優しい自治体と言えます。保育所の増設も行われています。またエネルギーの地産地消に取り組んでおり、再生エネルギーの補助についても充実しています。"
見どころ
東京都世田谷区の最大の魅力は都会にありながら自然が多く残っていることです。駒沢オリンピック公園、砧公園などの大規模な公園をはじめ、世田谷区内には大小多くの公園を有しています。公園だけではなく春の桜の時期には深沢地域の桜並木をはじめお花見できるスポットがいくつかあります。また景色で圧巻なのが等々力渓谷です。等々力駅から徒歩数分で滝を有する渓谷があり、紅葉の時期は特に綺麗です。
一方で商業施設も充実しており、百貨店、ショッピングモールの充実した二子玉川、個性的な雑貨屋やカフェが充実した下北沢、三軒茶屋エリア、隠れ家的な美味しい店が揃う三宿エリアなど用途に合わせて様々なショッピング、街歩きができるのも魅力です。"
東京都世田谷区
生活スタイル
東京都世田谷区は住宅地が多く都心のオフィスに通勤する人達の多い地域です。ですので、昼間人口が少なく、夜間人口が多い地域となっています。都心に向かう小田急線、田園都市線、京王線は特に朝ラッシュ時には混雑の激しい路線となっていますが、各線とも混雑緩和策をとっており混雑度は年々改善傾向にあります。
東京都は最近人口が増えていますが、特に世田谷区の人口増加率が高くなっています。理由は世田谷区というブランド力、子育て環境特に教育レベルの高さなどがあげられます。ですので、地価、家賃は上昇傾向にあります。一方で高齢化率も年々高くなっており高齢者対策も区役所が行っています。具体的には高齢者の熱中症予防事業等が行われています。
近隣の駅から探す
最近閲覧した物件



























































