APARTMENT
アルティザ氷川台
仲介物件
文章の一部また全部に機械翻訳を使用しています。
最終更新日 2026-04-29 11:57
物件概要
アクセス
利用可能プラン
当物件はスマート会員がご利用頂けません。 当物件はFIXプラン会員がご利用頂けません。 当物件はPAOがご利用いただけません。
初期費用と条件
建物・周辺・管理情報
- 建物概要 RC 5階建て 建築年月:2024/04 駐車場 無
- 周辺環境
- 自社管理番号 407055
共用設備
空室情報
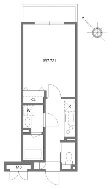
0301 | 入居日相談
| 毎月費用 | 賃料 | ¥97,000 | |
|---|---|---|---|
| 共益費・管理費 | ¥15,000 | ||
| プレミアデスク2年(税込) | 22,000円 | 契約時ルームクリーニング代(税込) | 60,500円 |
| 仲介手数料 | 賃料の1.1ヶ月分 | ||
| 保証会社 |
加入要 エポスカード ※エポス ルームIDからの審査になります。 【ルームID】月額総賃料の50%/月次保証料、月額総賃料の1.5%/1年毎10,000円 【アーク賃貸保証】月額総賃料の40%/次年度以降10,000円※引 |
||
| 鍵交換費用 | 38,500円 | ||
| 初期費用概算 |
¥451,700
※)契約日が月初1日の場合の概算です。 ※)保証会社への保証料は含まれていません |
||
| 契約期間 | 2年0月 | ||
| 備考 | 室内設備は浴室乾燥機・洗面所独立などが揃っているので、快適に過ごしやすいお部屋になります。収納はシューズボックス・クロゼットなどが備え付けられているので、衣類や日用品の収納に重宝します。エアコン付きなので、室内の温度調整が簡単です。こちらの物件はマンションです。お部屋探しの時の不安や疑問を知識の豊富なスタッフが解消します。練馬区や氷川台付近のことなら当社へご連絡下さい。 | ||
- 男性/女性
採光・日当たり
窓向き:北東
ロケーション
-
角部屋
水回り
-
トイレ
-
バス
-
バス・トイレ別
-
シャワー
-
温水洗浄便座
-
洗面所独立
家電・機器
-
冷暖房
家具
-
フローリング
-
収納
屋外設備
-
バルコニー
インターネット
-
インターネット対応
- インターネット使用料:なし
エンターテイメント設備
-
CATV
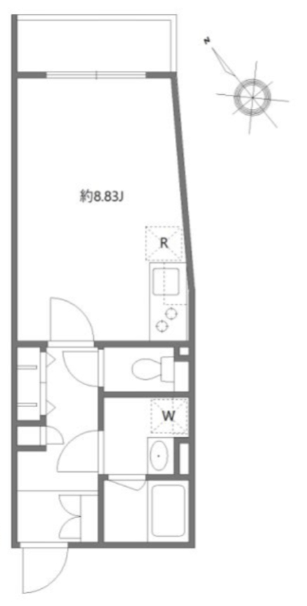
0402 | 入居日相談
| 毎月費用 | 賃料 | ¥99,000 | |
|---|---|---|---|
| 共益費・管理費 | ¥15,000 | ||
| プレミアデスク2年(税込) | 22,000円 | 契約時ルームクリーニング費用(税込) | 60,500円 |
| 仲介手数料 | 賃料の1.1ヶ月分 | ||
| 保証会社 |
加入要 エポスカード ※エポス ルームIDからの審査になります。 【ルームID】月額総賃料の50%/月次保証料、月額総賃料の1.5%/1年毎10,000円 【アーク賃貸保証】月額総賃料の40%/次年度以降10,000円※引 |
||
| 鍵交換費用 | 38,500円 | ||
| 初期費用概算 |
¥457,900
※)契約日が月初1日の場合の概算です。 ※)保証会社への保証料は含まれていません |
||
| 契約期間 | 2年0月 | ||
| 備考 | セキュリティ面は、オートロック・TVインターホンなど充実しているので安心して生活できます。宅配ボックスがあるので宅配業者が来たときに玄関のドアを開けることなく荷物を受け取ることができ、防犯対策にもなります。快適な暮らしがしたいとお考えの方に、ぜひご紹介したい街があります。それは練馬区エリアです。住環境が整っているので、不便さをあまり感じない生活が可能です。ぜひお気軽にご連絡下さい。 | ||
- 男性/女性
採光・日当たり
窓向き:北東
水回り
-
トイレ
-
バス
-
バス・トイレ別
-
シャワー
-
温水洗浄便座
-
洗面所独立
家電・機器
-
冷暖房
家具
-
フローリング
-
収納
屋外設備
-
バルコニー
インターネット
-
インターネット対応
- インターネット使用料:なし
エンターテイメント設備
-
CATV
図面
地図
運営会社
-
会社名
オークハウス仲介担当
東京都新宿区新小川町1-6
- 会社概要 こちらの建物はオークハウスがご案内致します。
近隣の物件
練馬区のシェアハウス
APARTMENT
クレヴィスタ氷川台
¥116,000 - ¥123,000 空室
25.70㎡〜 / 4階建て
- 家具・家電付き
- 敷金なし
APARTMENT
アリビオン大泉学園
¥98,000 - ¥101,000 空室
24.35㎡〜 / 4階建て
- 家具・家電付き
- 敷金なし
APARTMENT
J-ARC上石神井
¥126,000 - ¥133,000 空室
26.15㎡〜 / 4階建て
- 家具・家電付き
- 敷金なし
氷川台駅のシェアハウス
APARTMENT
クレヴィスタ氷川台
¥116,000 - ¥123,000 空室
25.70㎡〜 / 4階建て
- 家具・家電付き
- 敷金なし
東京メトロ有楽町線のシェアハウス
SHAREHOUSE
オークハウス池袋
¥47,000 - ¥68,000 空室予定
4.90㎡〜 / 2階建て / 東武東上線 北池袋 6分
- マンスリー
- 家具・家電付き
- 敷金なし
- 礼金なし
APARTMENT
AXAS池袋レジデンス
¥152,000 - ¥152,000 空室予定
25.51㎡〜 / 11階建て
- 家具・家電付き
- 敷金なし
APARTMENT
クレヴィスタ成増Ⅱ
¥124,000 - ¥129,000 空室
25.60㎡〜 / 5階建て
- 家具・家電付き
- 敷金なし
東京メトロ副都心線のシェアハウス
APARTMENT
グランドメゾン歌舞伎町
¥130,000 - ¥130,000 満室
23.24㎡〜 / 9階建て / 都営大江戸線 東新宿 3分
- マンスリー
- 家具・家電付き
- 敷金なし
- 礼金なし
APARTMENT
ハーモニーレジデンス新宿EAST
¥167,000 - ¥177,000 空室
25.96㎡〜 / 7階建て
- 家具・家電付き
- 敷金なし
SHAREHOUSE
代官山シェアハウス
¥85,000 - ¥112,000 空室予定
6.70㎡〜 / 3階建て / 東京メトロ銀座線 渋谷 9分
- マンスリー
- 家具・家電付き
- 敷金なし
- 礼金なし
東京メトロ有楽町線・副都心線のシェアハウス
APARTMENT
オークアパートメント平和台
¥74,000 - ¥78,000 満室
10.39㎡〜 / 2階建て / 東京メトロ有楽町線 平和台(東京) 7分
- マンスリー
- 家具・家電付き
- 敷金なし
- 礼金なし
APARTMENT
キャンバス成増
¥62,000 - ¥67,000 空室予定
14.85㎡〜 / 2階建て / 東京メトロ有楽町線 地下鉄成増 10分
- マンスリー
- 家具・家電付き
- 敷金なし
- 礼金なし
APARTMENT
桂ハイツ
¥66,000 - ¥68,000 満室
17.60㎡〜 / 東京メトロ有楽町線 平和台(東京) 5分
- マンスリー
- 家具・家電付き
- 敷金なし
- 礼金なし
-
外観 外観は落ち着いています
-
外観 外観もきれいです
-
エントランス ゆとりのあるエントランスです
-
エントランス 毎日通るエントランスはこのようになっています
0301
-
居間 ゆったりとしたリビングです
![]()
-
居間 ゆったり過ごせる居間です
![]()
-
キッチン コンパクトなキッチンで掃除もラクラク
![]()
-
キッチン キッチンです
![]()
-
風呂 お風呂です
![]()
-
トイレ トイレも気になるポイント
![]()
-
洗面 ゆったりとスペースのある洗面所
![]()
-
収納 たっぷりとした収納スペースです
![]()
-
設備
![]()
-
設備
![]()
-
設備
![]()
-
その他画像 セキュリティ
![]()
-
その他画像 その他共有部分
![]()
-
その他画像 セキュリティ
![]()
-
その他画像 その他共有部分
![]()
-
その他画像 その他共有部分
![]()
0402
-
居間 ゆったり過ごせるリビングです
![]()
-
居間 ゆったり過ごせるリビングです
![]()
-
キッチン コンパクトなキッチンで掃除もラクラク
![]()
-
風呂 お風呂です
![]()
-
トイレ トイレです
![]()
-
洗面 使いやすい洗面所です
![]()
-
収納 こまごまとしたものを収納できそうですね
![]()
-
収納 収納スペース豊富です
![]()
-
その他画像 セキュリティ
![]()
-
その他画像 その他共有部分
![]()
-
その他画像 その他共有部分
![]()
-
その他画像 セキュリティ
![]()
0部屋がヒットしました
練馬区のエリア情報
エリアの概要
東京都は日本の首都として、とかく新宿や渋谷などのコンクリートジャングルが取り沙汰されることが多いですが、東京都練馬区はこうした都会的な風景とは一線を画した、緑豊かな街並みを特徴としています。東京都練馬区は、居住人口の少ない街の多い東京都23区内にあって、世田谷区に次ぐ人口規模を誇り、大都会へ人を送り込むベッドタウンとしての機能に優れた街として栄えています。広い土地面積を背景に、東京ではとりわけ珍しい農業が盛んであり、練馬大根は全国的な知名度を誇る区の名産品となっています。若者の人口の多さはまた、練馬区の未来を嘱望し、23区で最も新しい区として人口減少が進む東京都の将来を支えています。域内のおよそ9割が住宅地という練馬区は、東京都内でも異質の存在として注目を集めています。
見どころ
東京都は、域内のほどんどがうずたかいビル群に包まれ、喧騒の激しい雑多な街並みを特徴としています。いっぽう東京都練馬区は、東京都という日本の中心地に位置しながら、都会の喧騒から離れた落ち着いた風情が魅力です。他のエリアと比べると、行楽地などは少ないかもしれませんが、みどりの練馬として多くの自然や農園などを未だに残し、実りある豊かな景色が広がっています。練馬区にはまた、石神井公園や城北公園、光が丘公園や武蔵関公園など、多くの公園を抱える区としても有名です。農業が盛んで、住宅地が広がり、都会とは趣が少し違う練馬区では、またアニメも盛んであり、区内には多くのアニメ会社が集積しており、世界にぞくぞくと発信される日本文化を担うエリアともなっています。
生活スタイル
東京都練馬区は、人口およそ70万を数える都内有数の住宅エリアです。とりわけ練馬区は交通アクセスが良く、賃貸住宅などの平均家賃も都内ではかなりリーズナブルな相場を維持しているため、区内にはたくさんの賃貸住宅が存在しています。このため、若いファミリー世帯からの人気がとても高くなっています。都市部ではむしろ不便と言われる車での移動ですが、練馬区は自家用車の保有率もほかの23区と比べると高い傾向にあり、鉄道交通も充実している一方で、自動車が区民の足ともなっています。また、練馬区の農業は都市型農業と呼ばれ、生産者と消費者の近さを背景に、流通経費を抑えることができるため、直売などを通じて新鮮な農産物を享受することが可能です。都心部としては珍しく、練馬区の特徴づけるポイントとなっています。
近隣の駅から探す
最近閲覧した物件
-
APARTMENT
アルティザ氷川台
入居条件: 女性 男性 外国人¥87,000 - ¥99,000
-
APARTMENT
アピチェ戸越銀座
入居条件: 女性 男性 外国人¥155,000 - ¥248,000
-
APARTMENT
PREMIUM CUBE 品川大崎
入居条件: 女性 男性 外国人¥137,000 - ¥137,000





















































