APARTMENT
湯島レジデンス
仲介物件
文章の一部また全部に機械翻訳を使用しています。
最終更新日 2026-04-29 00:06
物件概要
アクセス
利用可能プラン
当物件はスマート会員がご利用頂けません。 当物件はFIXプラン会員がご利用頂けません。 当物件はPAOがご利用いただけません。
初期費用と条件
建物・周辺・管理情報
- 建物概要 RC 5階建て 建築年月:2024/01 駐車場 無
- 周辺環境
- 自社管理番号 407048
共用設備
空室情報
0302 | 空室予定 202604 ~
| 毎月費用 | 賃料 | ¥210,000 | |
|---|---|---|---|
| 共益費・管理費 | ¥15,000 | ||
| プレミアムデスク(2年/税込) | 22,000円 | 契約時ルームクリーニング費用(税込) | 110,220円 |
| 仲介手数料 | 賃料の1.1ヶ月分 | ||
| 保証会社 |
加入要 エポスカード ※エポス ルームIDからの審査になります。 【ルームID】月額総賃料の50%/月次保証料、月額総賃料の1.5%/1年毎10,000円 【アーク賃貸保証】月額総賃料の40%/次年度以降10,000円※引 |
||
| 鍵交換費用 | 38,500円 | ||
| 初期費用概算 |
¥851,720
※)契約日が月初1日の場合の概算です。 ※)保証会社への保証料は含まれていません |
||
| 契約期間 | 2年0月 | ||
| 備考 | セキュリティ面は、TVインターホン・オートロックなど充実しているので、防犯対策もばっちりです。収納はクロゼット・シューズボックスなどが備え付けられているので、衣類や日用品の収納に重宝します。ペット好きな方におすすめのペット可能物件です。現在空家の物件です。文京区エリアや湯島付近での住まい選びは、当社にお任せください。当社でなら、お客様に合ったお部屋がきっと見つかります。 | ||
- 男性/女性
-
ペット可
採光・日当たり
窓向き:北
水回り
-
トイレ
-
バス
-
バス・トイレ別
-
シャワー
-
温水洗浄便座
-
洗面所独立
家電・機器
-
冷暖房
家具
-
フローリング
-
収納
インターネット
-
インターネット対応
- インターネット使用料:なし
0402 | 入居日相談
| 毎月費用 | 賃料 | ¥210,000 | |
|---|---|---|---|
| 共益費・管理費 | ¥15,000 | ||
| プレミアムデスク(2年/税込) | 22,000円 | 契約時ルームクリーニング費用(税込) | 110,220円 |
| 仲介手数料 | 賃料の1.1ヶ月分 | ||
| 保証会社 |
加入要 エポスカード ※エポス ルームIDからの審査になります。 【ルームID】月額総賃料の50%/月次保証料、月額総賃料の1.5%/1年毎10,000円 【アーク賃貸保証】月額総賃料の40%/次年度以降10,000円※引 |
||
| 鍵交換費用 | 38,500円 | ||
| 初期費用概算 |
¥851,720
※)契約日が月初1日の場合の概算です。 ※)保証会社への保証料は含まれていません |
||
| 契約期間 | 2年0月 | ||
| 備考 | こだわりポイント満載の湯島レジデンス。共用部には宅配ボックスが付いているため、好きなタイミングで荷物を受け取ることができます。セキュリティ面は、オートロック・TVインターホンなどを備え付けているので安心して暮らせます。当社スタッフの豊富な経験から、住まい探しに関するお問い合わせを受け付けております。お客様のニーズにお応えできるよう努めて参りますので、まずはお気軽にご連絡下さい。 | ||
- 男性/女性
-
ペット可
採光・日当たり
窓向き:北
ロケーション
-
角部屋
水回り
-
トイレ
-
バス
-
バス・トイレ別
-
シャワー
-
温水洗浄便座
-
洗面所独立
家電・機器
-
冷暖房
家具
-
フローリング
-
収納
インターネット
-
インターネット対応
- インターネット使用料:なし
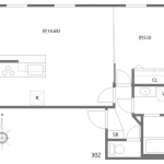
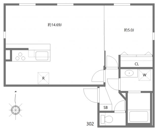
図面
地図
運営会社
-
会社名
オークハウス仲介担当
東京都新宿区新小川町1-6
- 会社概要 こちらの建物はオークハウスがご案内致します。
近隣の物件
文京区のシェアハウス
APARTMENT
パークウェル文京千石
¥78,000 - ¥140,000 空室
22.68㎡〜 / 6階建て
- 家具・家電付き
- 敷金なし
APARTMENT
プレール御茶ノ水弐番館
¥80,000 - ¥118,000 空室
19.02㎡〜 / 7階建て
- 家具・家電付き
- 敷金なし
APARTMENT
プレニーズ護国寺PREMIER
¥179,000 - ¥179,000 空室
25.01㎡〜 / 3階建て
- 家具・家電付き
- 敷金なし
湯島駅のシェアハウス
APARTMENT
KOUSOU秋葉原
¥153,000 - ¥161,000 空室
20.78㎡〜 / 5階建て
- 家具・家電付き
- 敷金なし
東京メトロ銀座線のシェアハウス
APARTMENT
ジオーブルミナス
¥188,000 - ¥284,000 空室
26.04㎡〜 / 13階建て
- 敷金なし
APARTMENT
フェルクルール上野駅前
¥190,000 - ¥190,000 入居日相談
40.05㎡〜 / 13階建て
- 敷金なし
- 礼金なし
SHAREHOUSE
オークハウス浅草ストリート
¥66,000 - ¥133,000 空室予定
6.51㎡〜 / 5階建て / 東京メトロ銀座線 田原町(東京) 6分
- マンスリー
- 家具・家電付き
- 敷金なし
- 礼金なし
東京メトロ千代田線のシェアハウス
APARTMENT
フィオーネ東尾久
¥95,000 - ¥98,000 空室
17.71㎡〜 / 4階建て
- 家具・家電付き
- 敷金なし
APARTMENT
メゾンアルピナ北千住
¥97,000 - ¥97,000 空室予定
17.21㎡〜 / 3階建て
- 家具・家電付き
- 敷金なし
APARTMENT
プライムアーバン千住
¥128,000 - ¥237,000 空室予定
31.60㎡〜 / 14階建て
-
外観 建物外観を気になさる方へ、見た目の良い物件です
-
外観 落ち着いた雰囲気の外観です
-
エントランス 清潔なエントランスです
-
エントランス 清潔なエントランスです
0302
-
玄関 玄関です
![]()
-
居間 使いやすい居間です
![]()
-
居間 ゆったりとしたリビングです
![]()
-
キッチン コンパクトなキッチンで掃除もラクラク
![]()
-
風呂 ゆったり過ごせるお風呂です
![]()
-
トイレ トイレもきれいです
![]()
-
洗面 脱衣スペースもあります
![]()
-
収納 ちょっとした収納スペースも充実しています
![]()
-
収納 便利な収納スペースです
![]()
-
設備
![]()
-
その他画像 セキュリティ
![]()
-
その他画像 セキュリティ
![]()
-
その他画像 その他共有部分
![]()
0402
-
玄関 玄関です
![]()
-
居間 リビングです
![]()
-
居間 ゆったり過ごせるリビングです
![]()
-
キッチン コンパクトなキッチンで掃除もラクラク
![]()
-
風呂 コンパクトで使いやすいお風呂です
![]()
-
トイレ トイレもきれいです
![]()
-
洗面 使いやすい洗面所です
![]()
-
収納 十分な収納スペースがあります
![]()
-
収納 こまごまとしたものを収納できそうですね
![]()
-
設備
![]()
-
設備
![]()
-
その他画像 セキュリティ
![]()
-
その他画像 その他共有部分
![]()
-
その他画像 その他
![]()
0部屋がヒットしました
文京区のエリア情報
エリアの概要
東京都文京区の広さは11.29平方キロメートルで、区内に20万人を超える人が住んでいます。住宅地も多くありますが、アクセスの良さを背景に企業もたくさん進出しているため、昼間の人口は30万人を超え、実に10万人以上の人が他地域から会社や学校へ通うために文京区へ移動してきます。
人の居住エリアとしての歴史は古く、区内28か所からは縄文時代の遺跡が発見されており、1万8千年前にはすでに人が住んでいたと考えられています。江戸時代には、加賀藩の前田家の広大な屋敷がありましたが、現在その跡地に日本最高学府の東京大学が設置されています。明治時代には大学周辺に出版業者が進出し、そこに集まるように、坪内逍遥、森鴎外、夏目漱石、樋口一葉といった文豪が居を構えており、現在でも東京都文京区は出版業が盛んな地域です。
区の名前は、小石川区と本郷区が合併する際、東大等の学校と出版が集まる「文教の府」の意味を込め考えられ、「文の京(ふみのみやこ)」を同じ音で読ませ、より書きやすい「文京」と名付けられました。
見どころ
東京都文京区には、様々な見どころがあります。
まず、スポーツや遊園地のランドマークとして東京ドームシティがあげられ、野球、ボクシングといったスポーツを観戦し、遊園地で乗り物を楽しみ、高層階にある温泉でリラックスをすることもできます。
東京ドームシティに隣接する小石川後楽園は、水戸徳川家の上屋敷の庭園だった場所で、花菖蒲、水連等様々な植物を楽しむことができます。また、東京ドームシティと東京メトロ丸の内線を挟んだ向かいには文京区役所でもある、シビックセンターがあり、25階の展望台は解放されているため、無料で東京の風景を楽しむことができます。
東京ドームシティから北東の本郷へ移ると東京大学があり、さらに、北の駒込へ移動すると5代目将軍徳川綱吉の大老だった柳沢吉保の屋敷の庭であった六義園があります。また、湯島天神など、神社やパワースポットも充実しており、さまざまな見どころがある区です。
生活スタイル
前述の通り、東京都文京区は都市化が進み、企業が進出しているため、あまり生活の香りがしない地域のように思われがちですが、本郷、小石川、白山、音羽、大塚、根津といった地域には住人も多く住み、また、下町の雰囲気を残した街並みも見ることができます。住人の都市への回帰も進んでおり、現在では住人の流入人数は流出人数を上回っています。住宅街には、おしゃれなお店も点在しており、住人の交流の場として栄えています。
文教の府として設立された文京区でしたが、多くの大学が郊外へ転出してしまい昔に比べると文教のイメージが失われつつあります。現在では区内に残る15の大学の一部の大学と包括協定を結び、大学間の交流はもとより、区民と大学の交流の強化を図ることを推進しています。
湯島駅のエリア情報
湯島駅は東京都文京区にあり、東京メトロ千代田線が走る駅です。1969年に開業し、1日あたりの乗降客数はピーク時に比べると7,000人程度減少しています。しかしここ最近は増加傾向にあり、1日あたり3万5,000人台後半となっています。2017年度における乗降客数の順位は、東京メトロ全体の中で130駅中103位という実績です。隣駅は上り方面側に新御茶ノ水駅があり、その反対側に根津駅があります。大手町駅まで2駅というアクセスの良さが非常に魅力的で、駅から徒歩すぐの場所にある上野御徒町駅を利用することもでき、乗り換えも容易です。乗り場は1番線と2番線があり、1番線が千代田線の大手町・代々木上原方面行き、2番線が北千住・綾瀬方面行きです。
近隣の駅から探す
最近閲覧した物件













































