APARTMENT
板桥区和谐公寓网站
仲介物件
部分或全部文字经过翻译软件翻译。
最新更新日期 2026-04-16 19:28
物业概要
交通手段
可用方案
此房屋不可使用Smart会员折扣。 本物业不适用于FIX计划会员 本物业不适用于PAO支付
初始費用與條件
建筑与管理信息
- 建筑物概要 4樓層數 建造年份:2019/11 汽車停車場 无 零
- 周边环境
- 自有管理编号 406993
共用设备
空房信息
303 | 即將空房 202604 ~
| 每個月費用 | 租金 | ¥99,800 | |
|---|---|---|---|
| 共益費・管理费 | ¥15,000 | ||
| 禮金 | 1个月 | 60,500日元 | |
| 中介费 | 租金的1.1个月份 | ||
| 担保公司 |
需要订阅 |
||
| 换钥匙费用 | 38,500日元 | ||
| 初期费用估价。 |
¥560,180
※)根据每月第一天的合同日期估算。 ※)担保公司相关费用不包含在内。 |
||
| 合同期间 | 2年0月 | ||
| 备注 | |||
- 男性/女性
- 外國居民可入住
-
宠物可一同入住
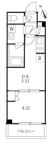
采光・日照
窗户朝向:西南
衛浴設施
-
洗手間
-
風呂
-
单独的浴室和厕所
-
淋浴
-
卫洗丽
-
独立洗手处
家电与器具
-
冷暖氣機
家具
-
木质地板
-
收納
户外设施
-
露臺
互联网
-
支持网络连接
- 网络使用费:免费
圖面
地图
管理公司
-
管理公司
OAKHOUSE as Agent
1-6, Shinogawamachi, Shinjuku-ku, Tokyo 162-0814
- 公司概要 OAKHOUSE will show you this apartment.
附近房源
板橋區的Share House
APARTMENT
Log Itabashi Kuyakushomae
¥147,000 - ¥192,000 空房
25.51㎡〜 / 12樓層數
- 附家具家電
- 無押金
APARTMENT
Ludens Tokiwadai III
¥81,000 - ¥96,000 空房
19.22㎡〜 / 4樓層數
- 無押金
APARTMENT
Prere Duque Itabashi Honcho III
¥113,000 - ¥134,000 空房
25.71㎡〜 / 12樓層數
- 附家具家電
- 無押金
志村三丁目車站的Share House
APARTMENT
板桥志村
¥113,000 - ¥120,000 空房
25.41㎡〜 / 5樓層數
- 附家具家電
- 無押金
志村坂上車站的Share House
APARTMENT
Mind Shimurasakaue
¥164,000 - ¥187,000 空房
32.02㎡〜 / 9樓層數
- 附家具家電
- 無押金
都営三田線的Share House
APARTMENT
柳板桥本町
¥128,000 - ¥154,000 空房
26.07㎡〜 / 4樓層數
- 附家具家電
- 無押金
APARTMENT
CREST清水町
¥75,000 - ¥75,000 客滿
22.93㎡〜 / 都営三田線 板橋本町 5分
- 月租
- 附家具家電
- 無押金
- 無禮金
APARTMENT
Clevista 板桥西台 III
¥99,000 - ¥115,000 空房
25.51㎡〜 / 10樓層數
- 附家具家電
- 無押金
0間房間。
板橋區 地区信息
區域概要
東京都板橋區位在東京23區的北部,人口數約54萬人。區內雖然沒有顯眼的娛樂設施,但工業相當盛行,是支撐東京都工業的區域。大田區的工業雖然也非常繁華,但大田區主要以中小規模工廠為主,而板橋區則是聚集許多大型工廠的工業地帶,從食品到精密機器,支撐著東京製造工業。另外,因板橋區的電車路線網相當完善,所以區內的住宅區也非常有人氣,居住人口為23區最多。
魅力
板橋區內有許多工廠,以工業發展為主的區域,但也因有多數主要幹道通過,所以前往都心的交通非常便利。除了工業地帶外,在部分地區意外有寬廣的住宅區,和其他區域不太一樣,主要給人寧靜住宅區和站前商店街的印象。板橋區的觀光景點雖較少,但區內有一些魅力的自然風景,如赤塚溜池公園的200棵梅花樹、石神井川沿岸的櫻花等,夏天時也會舉辦煙火大會,所以在板橋區可欣賞不同的四季風情。
生活型態
東京都板橋區內的車站約有20個左右,電車路線網的設計雖非常完善,但平均一站的搭乘人數少,使用率不高。因板橋區內有寬廣的工業區,所以在區內工作的人口非常多,和其他區域相比,板橋區民對家鄉的愛非常深。因管理職位的居民較少,所以平均所得在23區內屬於較低的區域,也因此被視為「庶民的街道」。板橋區的高齡者多,區內有許多醫院。而年經人口也多,比例僅次練馬區,為東京23區第二高,因此板橋區的未來發展令人期待。
附近车站搜索
最近浏览过的房屋































