APARTMENT
TERRACE自由が丘
仲介物件
文章の一部また全部に機械翻訳を使用しています。
最終更新日 2026-04-01 19:39
物件概要
アクセス
利用可能プラン
当物件はスマート会員がご利用頂けません。 当物件はFIXプラン会員がご利用頂けません。 当物件はPAOがご利用いただけません。
初期費用と条件
建物・周辺・管理情報
- 建物概要 木造 3階建て 建築年月:2016/01 駐車場 無
- 周辺環境
- 自社管理番号 403223
共用設備
空室情報
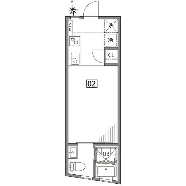
02 | 空室予定 2026/05/21 ~
| 毎月費用 | 賃料 | ¥96,000 | |
|---|---|---|---|
| 共益費・管理費 | ¥4,000 | ||
| 礼金 | 96,000円 | 敷金 | 96,000円 |
| サポート24 | 22,000円 | 退去時クリーニング費用 | 55,000円 |
| 仲介手数料 | 賃料の1.1ヶ月分 | ||
| 初期費用概算 |
¥574,600
※)契約日が月初1日の場合の概算です。 ※)保証会社への保証料は含まれていません |
||
| 契約期間 | 2年0月 | ||
| 備考 | TERRACE自由が丘:自由が丘駅にも近くて便利。収納はシューズボックス・クロゼットなど豊富なので、衣類や履き物の整理がしやすく便利です。浴室乾燥機付きの物件なので、梅雨や花粉などで洗濯物を外干しできない時期でも部屋干しをしなくて済みます。こちらの物件はアパートです。お客様とそのご家族の生活に大きく関わってくる、住の環境。これまでよりもよい生活を送るための住まいを見つけましょう。 | ||
- 男性/女性
採光・日当たり
窓向き:南
水回り
-
バス・トイレ別
-
温水洗浄便座
家電・機器
-
冷暖房
-
照明器具
家具
-
フローリング
-
収納
インターネット
- インターネット使用料:なし
図面
地図
運営会社
-
会社名
オークハウス仲介担当
東京都新宿区新小川町1-6
- 会社概要 こちらの建物はオークハウスがご案内致します。
近隣の物件
世田谷区のシェアハウス
APARTMENT
セリバシ笹塚
¥79,000 - ¥82,000 空室
13.98㎡〜 / 2階建て
- 家具・家電付き
- 長期契約向け:1年
- 敷金なし
- 保証金なし
- 保証人不要
APARTMENT
プライムガーデン桜上水
¥56,000 - ¥78,000 空室
15.06㎡〜 / 3階建て
- 長期契約向け:1年
- 敷金なし
- 礼金なし
- 保証金なし
- 保証人不要
APARTMENT
フラッフィー田園調布
¥117,000 - ¥180,000 空室
25.03㎡〜 / 4階建て
- 家具・家電付き
- 長期契約向け:1年
- 敷金なし
- 保証金なし
- 保証人不要
自由が丘(東京)駅のシェアハウス
APARTMENT
アルティザ自由が丘
¥160,000 - ¥222,500 空室
40.05㎡〜 / 5階建て
- 長期契約向け:1年
- 敷金なし
- 礼金なし
- 保証金なし
- 保証人不要
APARTMENT
リラ奥沢
¥160,000 - ¥160,000 空室
35.05㎡〜 / 2階建て
- 長期契約向け:1年
- 保証金なし
- 保証人不要
緑が丘(東京)駅のシェアハウス
APARTMENT
オークアパートメント自由が丘
¥103,000 - ¥130,000 空室予定
23.30㎡〜 / 2階建て / 東急大井町線 緑が丘(東京) 3分
- マンスリー
- 家具・家電付き
- 敷金なし
- 礼金なし
- 保証金なし
- 保証人不要
東急大井町線のシェアハウス
APARTMENT
ARKMARK等々力
¥129,000 - ¥136,000 空室予定
26.02㎡〜 / 7階建て
- 家具・家電付き
- 長期契約向け:1年
- 敷金なし
- 保証金なし
- 保証人不要
APARTMENT
ジェノヴィア二子新地
¥146,000 - ¥148,000 空室予定
25.35㎡〜 / 5階建て
- 家具・家電付き
- 長期契約向け:1年
- 敷金なし
- 保証金なし
- 保証人不要
一戸建て
大田区南千束3丁目戸建 1号棟
¥450,000 - ¥450,000 空室
102.88㎡〜 / 3階建て
- 長期契約向け:1年
- 保証金なし
- 保証人不要
東急東横線のシェアハウス
APARTMENT
LEGALAND祐天寺
¥141,000 - ¥141,000 空室予定
22.01㎡〜 / 4階建て
- 家具・家電付き
- 長期契約向け:1年
- 敷金なし
- 保証金なし
- 保証人不要
APARTMENT
Log武蔵小杉
¥134,000 - ¥141,000 空室
20.33㎡〜 / 9階建て
- 家具・家電付き
- 長期契約向け:1年
- 敷金なし
- 保証金なし
- 保証人不要
SHAREHOUSE
代官山シェアハウス
¥85,000 - ¥112,000 満室
6.70㎡〜 / 3階建て / 東京メトロ銀座線 渋谷 9分
- マンスリー
- 家具・家電付き
- 敷金なし
- 礼金なし
- 保証金なし
- 保証人不要
-
外観 外観
-
エントランス エントランス
02
-
内装 その他、部屋スペース
![]()
-
玄関 玄関
![]()
-
居間 居室、リビング
![]()
-
キッチン キッチン
![]()
-
風呂 バス
![]()
-
トイレ トイレ
![]()
-
洗面 洗面所
![]()
-
収納 収納
![]()
-
設備 その他 設備
![]()
-
その他画像 その他
![]()
0部屋がヒットしました
世田谷区のエリア情報
エリアの概要
東京都世田谷区は人口約90万人の東京都南西部にある特別区の1つです。東京都内でも有数の高級住宅街がいくつもある人気の地域で、人口が急激に増えています。
住宅地が多い一方で商店街も充実しており、大規模商業施設のある二子玉川や個人店の充実した下北沢、庶民的な商店街の広がる桜新町や千歳烏山、下高井戸などがあります。
東京都世田谷区は文化の発信している街でもあります。三軒茶屋にあるキャロットタワーでは多くの文化・芸術事業が行われておりますし、前述した下北沢には多くの小劇場があり、劇の街としての側面も有しています。
行政分野についてですが、東京都世田谷区役所は全国地方自治体の先駆けとなる政策を実践していることで有名です。最近では特に妊娠時からのケアに取り組んでおり、子育てに優しい自治体と言えます。保育所の増設も行われています。またエネルギーの地産地消に取り組んでおり、再生エネルギーの補助についても充実しています。"
見どころ
東京都世田谷区の最大の魅力は都会にありながら自然が多く残っていることです。駒沢オリンピック公園、砧公園などの大規模な公園をはじめ、世田谷区内には大小多くの公園を有しています。公園だけではなく春の桜の時期には深沢地域の桜並木をはじめお花見できるスポットがいくつかあります。また景色で圧巻なのが等々力渓谷です。等々力駅から徒歩数分で滝を有する渓谷があり、紅葉の時期は特に綺麗です。
一方で商業施設も充実しており、百貨店、ショッピングモールの充実した二子玉川、個性的な雑貨屋やカフェが充実した下北沢、三軒茶屋エリア、隠れ家的な美味しい店が揃う三宿エリアなど用途に合わせて様々なショッピング、街歩きができるのも魅力です。"
東京都世田谷区
生活スタイル
東京都世田谷区は住宅地が多く都心のオフィスに通勤する人達の多い地域です。ですので、昼間人口が少なく、夜間人口が多い地域となっています。都心に向かう小田急線、田園都市線、京王線は特に朝ラッシュ時には混雑の激しい路線となっていますが、各線とも混雑緩和策をとっており混雑度は年々改善傾向にあります。
東京都は最近人口が増えていますが、特に世田谷区の人口増加率が高くなっています。理由は世田谷区というブランド力、子育て環境特に教育レベルの高さなどがあげられます。ですので、地価、家賃は上昇傾向にあります。一方で高齢化率も年々高くなっており高齢者対策も区役所が行っています。具体的には高齢者の熱中症予防事業等が行われています。
近隣の駅から探す
最近閲覧した物件
-
APARTMENT
TERRACE自由が丘
入居条件: 女性 男性 外国人¥93,000 - ¥106,000


































