APARTMENT
プライムメゾン千葉新町
仲介物件
文章の一部また全部に機械翻訳を使用しています。
最終更新日 2026-03-23 18:56
物件概要
アクセス
利用可能プラン
当物件はスマート会員がご利用頂けません。 当物件はFIXプラン会員がご利用頂けません。 当物件はPAOがご利用いただけません。
初期費用と条件
建物・周辺・管理情報
- 建物概要 RC 13階建て 建築年月:2024/01 駐車場 ハイルーフ 28600円(込)/月 ロールーフ 24200円(込)/月
- 周辺環境
- 自社管理番号 396861
共用設備
空室情報
0503 | 入居日相談
| 毎月費用 | 賃料 | ¥100,000 | |
|---|---|---|---|
| 共益費・管理費 | ¥13,000 | ||
| 礼金 | 1ヶ月 | プレミアムデスク(2年/税込) | 22,000円 |
| 契約時ルームクリーニング代(税込) | 60,500円 | ||
| 仲介手数料 | 賃料の1.1ヶ月分 | ||
| 保証会社 |
加入要 Casa ※CASAからの審査になります。 【CASA】月額総賃料の70%(最低保証料20,000円)/月次保証料、月額総賃料の1.5% 【アーク賃貸保証】月額総賃料の40%/次年度以降10,000円※引落し |
||
| 鍵交換費用 | 38,500円 | ||
| 初期費用概算 |
¥557,000
※)契約日が月初1日の場合の概算です。 ※)保証会社への保証料は含まれていません |
||
| 契約期間 | 2年0月 | ||
| 備考 | ぜひ一度見ていただきたい、「プライムメゾン千葉新町」です。収納はクロゼット・シューズボックスなど豊富なので、広々と空間を利用することも可能です。宅配ボックスがあるので宅配業者が来たときに玄関のドアを開けることなく荷物を受け取ることができ、防犯対策にもなります。こちら千葉近くに立地する賃貸住宅でなら、きっとあなたの希望しているライフスタイルを叶えることができるでしょう。 | ||
- 男性/女性
- 外国人入居可
-
ペット可
採光・日当たり
窓向き:南
水回り
-
トイレ
-
バス
-
バス・トイレ別
-
温水洗浄便座
-
洗面所独立
家電・機器
-
冷暖房
家具
-
フローリング
-
収納
屋外設備
-
バルコニー
インターネット
-
インターネット対応
- インターネット使用料:なし
0609 | 入居日相談
| 毎月費用 | 賃料 | ¥101,000 | |
|---|---|---|---|
| 共益費・管理費 | ¥13,000 | ||
| 礼金 | 1ヶ月 | プレミアデスク2年(税込) | 22,000円 |
| 契約時ルームクリーニング代(税込) | 60,500円 | ||
| 仲介手数料 | 賃料の1.1ヶ月分 | ||
| 保証会社 |
加入要 Casa ※CASAからの審査になります。 【CASA】月額総賃料の70%(最低保証料20,000円)/月次保証料、月額総賃料の1.5% 【アーク賃貸保証】月額総賃料の40%/次年度以降10,000円※引落し |
||
| 鍵交換費用 | 38,500円 | ||
| 初期費用概算 |
¥561,100
※)契約日が月初1日の場合の概算です。 ※)保証会社への保証料は含まれていません |
||
| 契約期間 | 2年0月 | ||
| 備考 | 「プライムメゾン千葉新町」のここがイチオシ。セキュリティ面は、TVインターホン・オートロックなどを設置しているので安全面でも優れております。共用部には宅配ボックスを設置しているため、家で何時間も待機する必要がありません。エアコンが設置されている物件です。千葉市中央区エリアと千葉付近のお部屋探しなら当社へ。あなたからのお問い合せをスタッフ一同お待ちしております。 | ||
- 男性/女性
- 外国人入居可
-
ペット可
採光・日当たり
窓向き:南
水回り
-
トイレ
-
バス
-
バス・トイレ別
-
温水洗浄便座
-
洗面所独立
家電・機器
-
冷暖房
家具
-
フローリング
-
収納
屋外設備
-
バルコニー
インターネット
-
インターネット対応
- インターネット使用料:なし
812 | 空室予定 2026/05/01 ~
| 毎月費用 | 賃料 | ¥99,000 | |
|---|---|---|---|
| 共益費・管理費 | ¥11,000 | ||
| 礼金 | 1ヶ月 | 事務手数料 | 22,000円 |
| 退去時精算手数料 | 5,500円 | ||
| 仲介手数料 | 賃料の1.1ヶ月分 | ||
| 保証会社 |
加入要 初回保証料:総賃料の100% 更新時:20,000円/年毎 |
||
| 鍵交換費用 | 33,000円 | ||
| 室内清掃費用 | 55,000円 | ||
| 初期費用概算 |
¥543,400
※)契約日が月初1日の場合の概算です。 ※)保証会社への保証料は含まれていません |
||
| 契約期間 | 2年0月 | ||
| 備考 | リブクラブ2200円(月額) SBI少額短期保険800円(月額) ぜひ一度見ていただきたい、「プライムメゾン千葉新町」です。室内設備は浴室乾燥機・洗面所独立など豊富に揃っており、過ごしやすいお部屋になっております。セキュリティ面は、TVインターホン・オートロックなど充実しているので安心して生活できます。家賃を10万円以下に抑えることができます。交通の便の良さは、住まい探しの大事な決め手です。千葉周辺のお部屋探しな | ||
- 男性/女性
- 外国人入居可
-
家具・家電付き
-
ペット可
採光・日当たり
窓向き:北
水回り
-
トイレ
-
バス
-
バス・トイレ別
-
温水洗浄便座
-
洗面所独立
家電・機器
-
冷暖房
家具
-
フローリング
-
収納
インターネット
-
インターネット対応
- インターネット使用料:なし
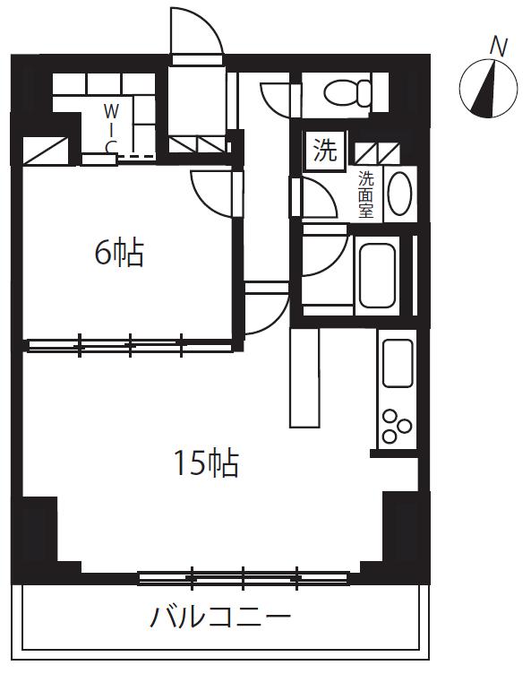
図面
地図
運営会社
-
会社名
オークハウス仲介担当
東京都新宿区新小川町1-6
- 会社概要 こちらの建物はオークハウスがご案内致します。
近隣の物件
APARTMENT
ジェノヴィア平塚
¥91,000 - ¥92,000 空室
24.67㎡〜 / 11階建て
- 家具・家電付き
- 長期契約向け:1年
- 敷金なし
- 保証金なし
- 保証人不要
APARTMENT
アンプルールクラージュアミティエ
¥67,500 - ¥68,000 空室
29.81㎡〜 / 2階建て
- 家具・家電付き
- 長期契約向け:1年
- 敷金なし
- 保証金なし
- 保証人不要
APARTMENT
VOGUE
¥86,000 - ¥95,000 空室
28.15㎡〜 / 3階建て
- 家具・家電付き
- 長期契約向け:1年
- 敷金なし
- 保証金なし
- 保証人不要
京成千葉駅のシェアハウス
APARTMENT
ステージファースト千葉中央
¥90,000 - ¥90,000 空室
21.45㎡〜 / 11階建て
- 家具・家電付き
- 長期契約向け:1年
- 敷金なし
- 保証金なし
- 保証人不要
京成千葉線のシェアハウス
APARTMENT
Buena casa 西千葉
¥82,000 - ¥82,000 空室予定
29.91㎡〜 / 3階建て
- 家具・家電付き
- 長期契約向け:1年
- 敷金なし
- 保証金なし
- 保証人不要
APARTMENT
ステージファースト千葉中央
¥90,000 - ¥90,000 空室
21.45㎡〜 / 11階建て
- 家具・家電付き
- 長期契約向け:1年
- 敷金なし
- 保証金なし
- 保証人不要
JR総武線のシェアハウス
HOTEL STAY
シタディーンセントラル新宿東京
¥10 - ¥453,750
10.00㎡〜 / 東京メトロ丸ノ内線 新宿 9分
- 保証人不要
APARTMENT
メインステージ錦糸町Ⅳ
¥124,000 - ¥127,000 空室
20.79㎡〜 / 14階建て
- 家具・家電付き
- 長期契約向け:1年
- 敷金なし
- 保証金なし
- 保証人不要
APARTMENT
Buena casa 西千葉
¥82,000 - ¥82,000 空室予定
29.91㎡〜 / 3階建て
- 家具・家電付き
- 長期契約向け:1年
- 敷金なし
- 保証金なし
- 保証人不要
JR総武線快速のシェアハウス
APARTMENT
ルーブル亀戸天神前
¥133,000 - ¥133,000 空室予定
25.48㎡〜 / 9階建て
- 家具・家電付き
- 長期契約向け:1年
- 敷金なし
- 保証金なし
- 保証人不要
APARTMENT
オークテラス錦糸町
¥175,000 - ¥175,000 満室
40.79㎡〜 / 7階建て / 東京メトロ半蔵門線 錦糸町 9分
- マンスリー
- 家具・家電付き
- 敷金なし
- 礼金なし
- 保証金なし
- 保証人不要
市川ブルグ
¥59,000 - ¥203,000 満室
9.60㎡〜 / 3階建て / 京成本線 市川真間 13分
- マンスリー
- 家具・家電付き
- 敷金なし
- 礼金なし
- 保証金なし
- 保証人不要
JR内房線のシェアハウス
APARTMENT
ジーメゾン千葉浜野プラージュ
¥70,000 - ¥80,000 空室
25.02㎡〜 / 3階建て
- 家具・家電付き
- 長期契約向け:1年
- 敷金なし
- 保証金なし
- 保証人不要
APARTMENT
ジーメゾン五井中央西ゼファー
¥68,000 - ¥69,000 空室予定
24.77㎡〜 / 3階建て
- 家具・家電付き
- 長期契約向け:1年
- 敷金なし
- 保証金なし
- 保証人不要
-
外観 落ち着いた雰囲気の外観です
-
エントランス ゆとりのあるエントランスです
-
エントランス 建物の内部です
0503
-
居間 ゆったりとしたリビングです
![]()
-
居間 おしゃれな居間です
![]()
-
キッチン キッチンです
![]()
-
風呂 日々の疲れを癒すお風呂付です
![]()
-
トイレ シンプルで使いやすいトイレです
![]()
-
洗面 明るい洗面所です
![]()
-
収納 収納豊富です
![]()
-
収納 専用の収納スペースです
![]()
-
その他画像 こちら、外観パースです
![]()
-
その他画像 セキュリティ
![]()
-
その他画像 セキュリティ
![]()
-
その他画像 その他共有部分
![]()
-
その他画像 その他共有部分
![]()
-
その他画像 その他共有部分
![]()
0609
-
居間 ゆったりとしたリビングです
![]()
-
居間 ゆったりとしたリビングです
![]()
-
キッチン キッチンです
![]()
-
風呂 ゆったり過ごせるお風呂です
![]()
-
トイレ トイレもきれいです
![]()
-
洗面 忙しい朝には欠かせない洗面所です
![]()
-
収納 収納スペース豊富です
![]()
-
収納 こまごまとしたものを収納できそうですね
![]()
-
設備
![]()
-
その他画像 外観パースです
![]()
-
その他画像 セキュリティ
![]()
-
その他画像 セキュリティ
![]()
-
その他画像 その他共有部分
![]()
-
その他画像 その他共有部分
![]()
-
その他画像 その他共有部分
![]()
812
-
内装 明るい室内です
![]()
-
内装 内装もきれいです
![]()
-
内装 内装もきれいです
![]()
-
内装 内装もきれいです
![]()
-
内装 中はこのようになっています
![]()
-
内装 明るい色調の室内です
![]()
0部屋がヒットしました
最近閲覧した物件
-
APARTMENT
プライムメゾン千葉新町
入居条件: 女性 男性 外国人¥86,000 - ¥179,000
























































