SOCIAL RESIDENCE
GRAN KOBE
Managed by Oakhouse
Last updated 2025-12-14 04:16
Grand Kobe will open in March 2024 with 42 rooms with furniture and appliances net、and a full common area including a theater、gym、study room、and spacious kitchen! Uozakikita-cho is a quiet and calm residential area. The Sumiyoshi River、which flows from Mt. Rokko as its source、is a 1-minute walk away. Walking along the walking course、you will be refreshed by the murmuring water and wild birds. We are currently recruiting opening members! Why don`t you join us in creating a share house with international and local exchange?
Additional info
House video
Gran Kobe
New Life in Kobe: Interview with a Share House Resident
"Gran Kobe" Shared House (co-living) house tour
Timeline
Daily life of this property is now available.
- Shoki@Oakhouse 今週も新鮮な水耕野菜がたくさん届きました!入居者の皆さん、全部食べてくださいね! 2025-07-17 16:44:56
- sato Ditoがチリの料理「ソパイピア」作ってくれた♡ 出来立て美味しすぎる╰(*´︶`*)╯♡ かぼちゃで作ってあるのでカロリー0なはず! Thank you Dito!! 2025-06-03 16:26:51
- sato ♡韓国料理パーティー♡ 物件に届く新鮮な野菜も使って韓国料理を作りました!この時は宝探しや、ジェスチャーゲームなど様々なアクティビティーもして、最後にはみんなでダンスタイム笑 みんな知らない場所でも仲間ができるって素晴らしいですね╰(*´︶`*)╯♡ 2025-05-21 14:08:35
- sato ⁂Norimaki Party⁂ We held an event that also served as a promotional video shoot for Grand Kobe. The setup was gorgeous, making it a treat for both the eyes and the taste buds. A local pie shop joined in and gave out free pies, adding to the fun! It was a heartwarming event full of smiles and delicious food. Be sure to check out the video to see the highlights! https://youtu.be/XZJkkmiWy-0 2025-05-21 13:30:56
- sato グラン神戸では頻繁にハウスイベントを行なっています⁂ これはウェルカムパーティー、お料理が本当に美味しかった!!! 2025-05-21 13:18:57
- jun Christmas Party 2024-12-24 22:14:00
Property Overview
Access
- Address Hyogo-ken Kobe-shi Higashinada-ku Uozaki kitamachi
-
Station1:
Hanshin line /
5 min walk to UozakiStation
Station2: Rokko Liner / 5 min walk to UozakiStation
- Terminal station 25 mins from Uozaki station to Osaka Umeda(Hanshin) station
Available discounts and special offers
Initial payment and terms
Building and management information
- Building outline 4-story building
- Number of property visits by house manager 2 times a Week
- Cleaning Frequency 1 times a Week
Shared facilities
Water facilities
Toilet Female only
Men’s bidet toilet: Room 7
Women’s bidet toilet: Room 4
Shower
Bathroom
Washroom M/F
Kitchen
Good kitchen property
Facilities in the shared spaces
Shared lounge
Huge cozy lounge
Theater
Smoking area
Coworking space
Household appliances
Internet
Entertainment facilities
Cooking appliances
Kitchen stove
Microwave
Rice cooker
Toaster
Oven
Food stocker
Cooking utensils
Security measures
Outdoor facilities
Room Availability
0 rooms found.
Single Room
¥ 51,000 ~ ¥ 55,000 Contract fee (one-time payment at contract signing): ¥ 50,000 Maintenance fee(to be paid monthly): ¥ 20,000
Room type facilities
Household appliances
-
Air conditioner
-
Lighting
-
Terrestrial digital TV antenna
Furniture
-
Storage
-
Single bed
-
Desk and chair
-
Curtains
-
Fully furnished with appliances
Outdoor facilities
-
Indoor clothes drying rack
-
Post box
Internet
-
Wireless
-
Wired
Cooking appliances
-
Refrigerator
| Rooms | Contract fee |
Monthly rent |
Size | Move in conditions |
Interior・
Sunlight Location |
|
|---|---|---|---|---|---|---|
|
|
Contract fee
¥50,000 |
Rent¥53,000 Maintenance fee
¥20,000 Monthly rent
¥73,000
※Total of rent |
|
Requirements
|
Interior・ Sunlight・ Location
|
Full |
|
|
Contract fee
¥50,000 |
Rent¥53,000 Maintenance fee
¥20,000 Monthly rent
¥73,000
※Total of rent |
|
Requirements
|
Interior・ Sunlight・ Location
|
2026/01/06 ~ |
103Vacancy Inquiries |
Contract fee
¥50,000 |
Rent¥53,000 Maintenance fee
¥20,000 Monthly rent
¥73,000
※Total of rent |
|
Requirements
|
Interior・ Sunlight・ Location
|
Vacancy |
|
|
Contract fee
¥50,000 |
Rent¥53,000 Maintenance fee
¥20,000 Monthly rent
¥73,000
※Total of rent |
|
Requirements
|
Interior・ Sunlight・ Location
|
2025/12/22 ~ |
|
|
Contract fee
¥50,000 |
Rent¥51,000 Maintenance fee
¥20,000 Monthly rent
¥71,000
※Total of rent |
|
Requirements
|
Interior・ Sunlight・ Location
|
Full |
|
|
Contract fee
¥50,000 |
Rent¥52,000 Maintenance fee
¥20,000 Monthly rent
¥72,000
※Total of rent |
|
Requirements
|
Interior・ Sunlight・ Location
|
Full |
|
|
Contract fee
¥50,000 |
Rent¥52,000 Maintenance fee
¥20,000 Monthly rent
¥72,000
※Total of rent |
|
Requirements
|
Interior・ Sunlight・ Location
|
Full |
|
|
Contract fee
¥50,000 |
Rent¥52,000 Maintenance fee
¥20,000 Monthly rent
¥72,000
※Total of rent |
|
Requirements
|
Interior・ Sunlight・ Location
|
Full |
|
|
Contract fee
¥50,000 |
Rent¥52,000 Maintenance fee
¥20,000 Monthly rent
¥72,000
※Total of rent |
|
Requirements
|
Interior・ Sunlight・ Location
|
Full |
|
|
Contract fee
¥50,000 |
Rent¥52,000 Maintenance fee
¥20,000 Monthly rent
¥72,000
※Total of rent |
|
Requirements
|
Interior・ Sunlight・ Location
|
Full |
|
|
Contract fee
¥50,000 |
Rent¥52,000 Maintenance fee
¥20,000 Monthly rent
¥72,000
※Total of rent |
|
Requirements
|
Interior・ Sunlight・ Location
|
Full |
|
|
Contract fee
¥50,000 |
Rent¥52,000 Maintenance fee
¥20,000 Monthly rent
¥72,000
※Total of rent |
|
Requirements
|
Interior・ Sunlight・ Location
|
Full |
|
|
Contract fee
¥50,000 |
Rent¥52,000 Maintenance fee
¥20,000 Monthly rent
¥72,000
※Total of rent |
|
Requirements
|
Interior・ Sunlight・ Location
|
Full |
|
|
Contract fee
¥50,000 |
Rent¥52,000 Maintenance fee
¥20,000 Monthly rent
¥72,000
※Total of rent |
|
Requirements
|
Interior・ Sunlight・ Location
|
Full |
|
|
Contract fee
¥50,000 |
Rent¥54,000 Maintenance fee
¥20,000 Monthly rent
¥74,000
※Total of rent |
|
Requirements
|
Interior・ Sunlight・ Location
|
Full |
|
|
Contract fee
¥50,000 |
Rent¥54,000 Maintenance fee
¥20,000 Monthly rent
¥74,000
※Total of rent |
|
Requirements
|
Interior・ Sunlight・ Location
|
Full |
|
|
Contract fee
¥50,000 |
Rent¥54,000 Maintenance fee
¥20,000 Monthly rent
¥74,000
※Total of rent |
|
Requirements
|
Interior・ Sunlight・ Location
|
Full |
204Vacancy Inquiries |
Contract fee
¥50,000 |
Rent¥54,000 Maintenance fee
¥20,000 Monthly rent
¥74,000
※Total of rent |
|
Requirements
|
Interior・ Sunlight・ Location
|
Vacancy |
|
|
Contract fee
¥50,000 |
Rent¥54,000 Maintenance fee
¥20,000 Monthly rent
¥74,000
※Total of rent |
|
Requirements
|
Interior・ Sunlight・ Location
|
Full |
|
|
Contract fee
¥50,000 |
Rent¥54,000 Maintenance fee
¥20,000 Monthly rent
¥74,000
※Total of rent |
|
Requirements
|
Interior・ Sunlight・ Location
|
Full |
|
|
Contract fee
¥50,000 |
Rent¥54,000 Maintenance fee
¥20,000 Monthly rent
¥74,000
※Total of rent |
|
Requirements
|
Interior・ Sunlight・ Location
|
Full |
|
|
Contract fee
¥50,000 |
Rent¥54,000 Maintenance fee
¥20,000 Monthly rent
¥74,000
※Total of rent |
|
Requirements
|
Interior・ Sunlight・ Location
|
2026/01/06 ~ |
|
|
Contract fee
¥50,000 |
Rent¥54,000 Maintenance fee
¥20,000 Monthly rent
¥74,000
※Total of rent |
|
Requirements
|
Interior・ Sunlight・ Location
|
Full |
|
|
Contract fee
¥50,000 |
Rent¥54,000 Maintenance fee
¥20,000 Monthly rent
¥74,000
※Total of rent |
|
Requirements
|
Interior・ Sunlight・ Location
|
Full |
|
|
Contract fee
¥50,000 |
Rent¥54,000 Maintenance fee
¥20,000 Monthly rent
¥74,000
※Total of rent |
|
Requirements
|
Interior・ Sunlight・ Location
|
Full |
|
|
Contract fee
¥50,000 |
Rent¥53,000 Maintenance fee
¥20,000 Monthly rent
¥73,000
※Total of rent |
|
Requirements
|
Interior・ Sunlight・ Location
|
Full |
|
|
Contract fee
¥50,000 |
Rent¥53,000 Maintenance fee
¥20,000 Monthly rent
¥73,000
※Total of rent |
|
Requirements
|
Interior・ Sunlight・ Location
|
Full |
|
|
Contract fee
¥50,000 |
Rent¥55,000 Maintenance fee
¥20,000 Monthly rent
¥75,000
※Total of rent |
|
Requirements
|
Interior・ Sunlight・ Location
|
Full |
|
|
Contract fee
¥50,000 |
Rent¥55,000 Maintenance fee
¥20,000 Monthly rent
¥75,000
※Total of rent |
|
Requirements
|
Interior・ Sunlight・ Location
|
Full |
|
|
Contract fee
¥50,000 |
Rent¥55,000 Maintenance fee
¥20,000 Monthly rent
¥75,000
※Total of rent |
|
Requirements
|
Interior・ Sunlight・ Location
|
Full |
|
|
Contract fee
¥50,000 |
Rent¥55,000 Maintenance fee
¥20,000 Monthly rent
¥75,000
※Total of rent |
|
Requirements
|
Interior・ Sunlight・ Location
|
2025/12/24 ~ |
|
|
Contract fee
¥50,000 |
Rent¥55,000 Maintenance fee
¥20,000 Monthly rent
¥75,000
※Total of rent |
|
Requirements
|
Interior・ Sunlight・ Location
|
Full |
|
|
Contract fee
¥50,000 |
Rent¥55,000 Maintenance fee
¥20,000 Monthly rent
¥75,000
※Total of rent |
|
Requirements
|
Interior・ Sunlight・ Location
|
Full |
|
|
Contract fee
¥50,000 |
Rent¥55,000 Maintenance fee
¥20,000 Monthly rent
¥75,000
※Total of rent |
|
Requirements
|
Interior・ Sunlight・ Location
|
Full |
|
|
Contract fee
¥50,000 |
Rent¥55,000 Maintenance fee
¥20,000 Monthly rent
¥75,000
※Total of rent |
|
Requirements
|
Interior・ Sunlight・ Location
|
Full |
|
|
Contract fee
¥50,000 |
Rent¥55,000 Maintenance fee
¥20,000 Monthly rent
¥75,000
※Total of rent |
|
Requirements
|
Interior・ Sunlight・ Location
|
Full |
309Vacancy Inquiries |
Contract fee
¥50,000 |
Rent¥55,000 Maintenance fee
¥20,000 Monthly rent
¥75,000
※Total of rent |
|
Requirements
|
Interior・ Sunlight・ Location
|
Vacancy |
|
|
Contract fee
¥50,000 |
Rent¥55,000 Maintenance fee
¥20,000 Monthly rent
¥75,000
※Total of rent |
|
Requirements
|
Interior・ Sunlight・ Location
|
Full |
|
|
Contract fee
¥50,000 |
Rent¥55,000 Maintenance fee
¥20,000 Monthly rent
¥75,000
※Total of rent |
|
Requirements
|
Interior・ Sunlight・ Location
|
Full |
|
|
Contract fee
¥50,000 |
Rent¥54,000 Maintenance fee
¥20,000 Monthly rent
¥74,000
※Total of rent |
|
Requirements
|
Interior・ Sunlight・ Location
|
Full |
|
|
Contract fee
¥50,000 |
Rent¥54,000 Maintenance fee
¥20,000 Monthly rent
¥74,000
※Total of rent |
|
Requirements
|
Interior・ Sunlight・ Location
|
Full |
|
|
Contract fee
¥50,000 |
Rent¥55,000 Maintenance fee
¥20,000 Monthly rent
¥75,000
※Total of rent |
|
Requirements
|
Interior・ Sunlight・ Location
|
Full |
Room type facilities
Household appliances
-
Air conditioner
-
Lighting
-
Terrestrial digital TV antenna
Furniture
-
Storage
-
Single bed
-
Desk and chair
-
Curtains
-
Fully furnished with appliances
Outdoor facilities
-
Indoor clothes drying rack
-
Post box
Internet
-
Wireless
-
Wired
Cooking appliances
-
Refrigerator
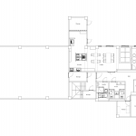
Diagram
Panorama view
Map
Resident Data
House Manager
- Nickname gumi
- Good things about the house The area around the property is a very quiet residential area、but the water is clean from the many sake breweries in the area. The ocean is close by and mountains are in view、so you can firmly feel the four seasons in this area. For shopping、please go to Sumiyoshi Station、a 14-minute walk from the property、or Kobe Sannomiya、an 8-minute train ride from Uozaki Station. Strolling from Kobe Sannomiya、you will find many leisure spots such as Chinatown and Harbor Land.
- My share house history I lived in a dormitory when I studied abroad in the Philippines! I am interested in living in an international environment and I want to get more and more involved with multinational people!
Events
There are currently no events planned at this house. Past events
Nearby Houses
Kansai area share houses
SHAREHOUSE
THE EARTH KYOTO IMADEGAWA
The 2nd Oakhouse share house in Kyoto city! Now in Kamigyo! 12 min wal……
Kyoto-fu Kyoto-shi Kamigyo-ku Yakushi-cho
KyotoSubway-Karasuma line / Imadegawa 12minutes
Move in conditions:
Female Male
- No Key Money
- No security deposit
- No Guarantor Deposit
- No brokerage Fee
- No guarantor
- No guarantor company
- Foreign Residents Allowed
- Women-only rooms available
- Non-Smoking house
- Furnished
- Monthly
Bicycle parking
Delivery box
Garden, rooftop, terrace
Non-Smoking house
Rooms for 2 or more available
¥40,000 - ¥59,000 Vacancy
-
Gender:
FemaleMale
-
Nationality:
Foreigner Japanese
-
Age:
10~29 30~49 Over 50
APARTMENT
CHARMANT KOMORI (KYOTO)
This stylish apartment is located just a short walk to Shijo-Karasuma、……
Kyoto-fu Kyoto-shi Shimogyo-ku Ougizakaya-cho
KyotoSubway-Karasuma line / Shijo(Kyotoshiei) 2minutes
Move in conditions:
Female Male
- No Key Money
- No security deposit
- No Guarantor Deposit
- No brokerage Fee
- No guarantor
- No guarantor company
- Foreign Residents Allowed
- Non-Smoking house
- Furnished
- Monthly
Bicycle parking
Delivery box
within 5 minutes to station
Non-Smoking house
Private room with bathroom,
kitchen, or toilet facilities
¥99,000 - ¥99,000 Vacancy
APARTMENT
LEGENDARY MUKOGAWA (Hyogo)
[Please note that Room 108 of this property will be available for occu……
Hyogo-ken Nishinomiyai-shi Komatsukita-machi
Hanshin-Mukogawa line / Mukogawa 17minutes
Move in conditions:
Female Male
- No Key Money
- No security deposit
- No Guarantor Deposit
- No brokerage Fee
- No guarantor
- No guarantor company
- Foreign Residents Allowed
- Non-Smoking house
- Furnished
- Monthly
Bicycle parking
Car parking
Coworking space
Scooter and motorcycle parking
Delivery box
Non-Smoking house
Private room with bathroom,
kitchen, or toilet facilities
¥57,000 - ¥60,000 Vacancy
-
Hanshin line share houses
SOCIAL RESIDENCE
SOCIAL RESIDENCE ACADEMIA OSAKA AMAGASAKI
This is one of the largest share houses in Kansai with 110 rooms! Muko……
Hyogo-ken Amagasaki-shi Oshonishi-machi
Hanshin line / Amagasaki Centerpoolmae 6minutes
Move in conditions:
Female Male
- No Key Money
- No security deposit
- No Guarantor Deposit
- No brokerage Fee
- No guarantor
- No guarantor company
- Foreign Residents Allowed
- Furnished
- Monthly
Bicycle parking
Theater
Soundproof room
Smoking area
Library
Coworking space
Delivery box
Garden, rooftop, terrace
Rooms for 2 or more available
¥48,000 - ¥63,000 Vacancy
Limited Time Offer 40000 Yen off the contract fee From December 1 to January 31
-
Gender:
FemaleMale
-
Nationality:
Foreigner Japanese
-
Age:
10~29 30~49 Over 50
APARTMENT
LEGENDARY MUKOGAWA (Hyogo)
[Please note that Room 108 of this property will be available for occu……
Hyogo-ken Nishinomiyai-shi Komatsukita-machi
Hanshin-Mukogawa line / Mukogawa 17minutes
Move in conditions:
Female Male
- No Key Money
- No security deposit
- No Guarantor Deposit
- No brokerage Fee
- No guarantor
- No guarantor company
- Foreign Residents Allowed
- Non-Smoking house
- Furnished
- Monthly
Bicycle parking
Car parking
Coworking space
Scooter and motorcycle parking
Delivery box
Non-Smoking house
Private room with bathroom,
kitchen, or toilet facilities
¥57,000 - ¥60,000 Vacancy
-
APARTMENT
Espace Urban Residence
5, Higashinamba-cho, Amagasaki City, Hyogo Prefecture
Move in conditions:
Female Male
- No security deposit
- No Guarantor Deposit
- No guarantor
- Foreign Residents Allowed
- Furnished
- Minimum contract period: 1 year
Bicycle parking
Delivery box
Private room with bathroom,
kitchen, or toilet facilities
¥71,000 - ¥71,000 Vacancy
-
-
-
-
-
-
8 minutes direct to Kobe-Sannomiya Station
-
24 minutes direct to Osaka-Umeda Station
-
33 minutes direct to Osaka-Namba Station
-
-
-
-
-
-
-
-
-
-
-
-
-
-
-
-
-
-
-
-
-
-
-
-
-
-
-
-
-
-
-
Bathrooms available on 2nd, 3rd and 4th floors
-
Laundry/shower (Photo taken during construction, before furniture and appliances were brought in)
-
toilet facilities
-
-
-
Stand light(All rooms has the same equipment)
-
Single sized bed(All rooms has the same equipment)
-
Closet(All rooms has the same equipment)
-
Desk and Chair(All rooms has the same equipment)
-
Desk light(All rooms has the same equipment)
-
Refrigerator(All rooms has the same equipment)
-
-
-
-
-
-
-
-
-
-
-
-
-
-
-
-
-
101
102
103
104
105
106
-
![]()
-
![]()
-
Room (from window side)
![]()
-
![]()
-
Refrigerator
![]()
-
Inside of refrigerator
![]()
-
Inside of closet
![]()
-
![]()
-
Desk/chair
![]()
-
![]()
-
Air conditioner
![]()
-
Air conditioner
![]()
107
108
109
110
111
112
113
114
201
202
203
204
205
206
-
![]()
-
![]()
-
![]()
-
Refrigerator
![]()
-
Inside of refrigerator
![]()
-
![]()
-
![]()
-
Desk/chair
![]()
-
![]()
-
Air conditioner
![]()
-
Air conditioner
![]()
207
208
209
210
211
212
213
214
301
302
303
304
305
306
-
![]()
-
![]()
-
![]()
-
Refrigerator
![]()
-
Inside of refrigerator
![]()
-
![]()
-
![]()
-
Desk/chair
![]()
-
![]()
-
Air conditioner
![]()
-
Air conditioner
![]()
307
308
309
310
311
312
313
314
0 rooms found.
Search by Nearby Stations
Recently viewed properties
-
GRAN KOBE
Hanshin line / Uozaki 4minutes
Move in conditions: Female Male Foreigner¥51,000 - ¥55,000













