APARTMENT
アンベリール王子
仲介物件
文章の一部また全部に機械翻訳を使用しています。
最終更新日 2025-12-20 22:33
物件概要
アクセス
利用可能プラン
当物件はスマート会員がご利用頂けません。 当物件はFIXプラン会員がご利用頂けません。 当物件はPAOがご利用いただけません。
初期費用と条件
建物・周辺・管理情報
- 建物概要 RC 13階建て 建築年月:2024/01 駐車場 無
- 周辺環境
- 自社管理番号 348494
共用設備
空室情報
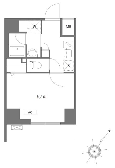
1301 | 空室
| 毎月費用 | 賃料 | ¥122,000 | |
|---|---|---|---|
| 共益費・管理費 | ¥15,000 | ||
| 礼金 | 1ヶ月 | 敷金 | 1ヶ月 |
| プレミアムデスク(2年/税込) | 16,500円 | ||
| 仲介手数料 | 賃料の1.1ヶ月分 | ||
| 保証会社 |
加入要 エポスカード ※エポス ルームIDからの審査になります。 【ルームID】月額総賃料の70%/月次保証料、月額総賃料の1.5%/1年毎10,000円 ●エポスグローバルプラン利用時:月額総賃料の100%,月額総賃料 |
||
| 鍵交換費用 | 38,500円 | ||
| 初期費用概算 |
¥707,200
※)契約日が月初1日の場合の概算です。 ※)保証会社への保証料は含まれていません |
||
| 契約期間 | 2年0月 | ||
| 備考 | 新生活を失敗せず、スタートさせたいならこちらの「アンベリール王子」はいかがでしょうか。共用部には宅配ボックス・ゴミ出し24時間OKなどが揃っております。室内設備は洗面所独立・浴室乾燥機など大変充実しております。幅広い方に好評のフローリング張りのマンションとなっています。住まい探しの際には、実際に住んでみた時のことを想像しながら進めていくことが大事です。より良い住まいをご提供致します。 | ||
- 男性/女性
- 外国人入居可
-
ペット可
採光・日当たり
窓向き:東南
ロケーション
-
角部屋
水回り
-
トイレ
-
バス
-
バス・トイレ別
-
シャワー
-
温水洗浄便座
-
洗面所独立
家電・機器
-
冷暖房
家具
-
フローリング
-
収納
屋外設備
-
バルコニー
インターネット
-
インターネット対応
- インターネット使用料:なし
図面
地図
運営会社
-
会社名
オークハウス仲介担当
東京都新宿区新小川町1-6
- 会社概要 こちらの建物はオークハウスがご案内致します。
近隣の物件
北区のシェアハウス
APARTMENT
ネオアーバンレジデンス駒込
東京都北区西ケ原1丁目
入居条件:
女性 男性
- 敷金なし
- 保証金なし
- 保証人不要
- 外国人入居可
- 家具・家電付き
- 最低契約期間:1年
宅配ボックス付き
2名以上入居可部屋あり
水回り付き個室あり
¥234,000 - ¥307,000 空室
APARTMENT
ディアレイシャス尾久駅前
東京都北区昭和町1丁目
入居条件:
女性 男性
- 敷金なし
- 保証金なし
- 保証人不要
- 外国人入居可
- 家具・家電付き
- 最低契約期間:1年
宅配ボックス付き
水回り付き個室あり
¥80,000 - ¥114,000 空室
APARTMENT
ジェノヴィア赤羽
東京都北区赤羽3丁目
入居条件:
女性 男性
- 敷金なし
- 保証金なし
- 保証人不要
- 外国人入居可
- 家具・家電付き
- 最低契約期間:1年
駐輪場
宅配ボックス付き
2名以上入居可部屋あり
水回り付き個室あり
¥224,000 - ¥228,000 空室
王子駅のシェアハウス
APARTMENT
オープンレジデンシア王子
東京都北区王子2丁目
入居条件:
女性 男性
- 敷金なし
- 保証金なし
- 保証人不要
- 外国人入居可
- 家具・家電付き
- 最低契約期間:1年
宅配ボックス付き
2名以上入居可部屋あり
水回り付き個室あり
¥172,000 - ¥172,000 空室予定
APARTMENT
ラ・ルーチェ
東京都北区豊島1丁目
入居条件:
女性 男性
- 敷金なし
- 保証金なし
- 保証人不要
- 外国人入居可
- 家具・家電なし
- 最低契約期間:1年
宅配ボックス付き
¥72,000 - ¥78,000 入居日相談
APARTMENT
プレール・ドゥーク西巣鴨
東京都北区滝野川2丁目
入居条件:
女性 男性
- 敷金なし
- 保証金なし
- 保証人不要
- 外国人入居可
- 家具・家電付き
- 最低契約期間:1年
宅配ボックス付き
水回り付き個室あり
¥111,000 - ¥121,000 空室
東京メトロ南北線のシェアハウス
SHAREHOUSE
フローラ白金台
駅近でかつ高級エリアに位置する女性専用シェアハウスです。築古ですが、お部屋はリフォームしたばかりで綺麗です。日当たりよく、明るくて広めのお部……
東京都港区白金台
東京メトロ南北線 / 白金台 5分
入居条件:
女性
- 礼金なし
- 敷金なし
- 保証金なし
- 仲介手数料なし
- 保証人不要
- 保証会社不要
- 外国人入居可
- 女性専用物件
- 女性専用部屋あり
- 禁煙ハウス
- 家具・家電付き
- マンスリー
駐輪場
駅5分以内
禁煙ハウス
2名以上入居可部屋あり
¥62,000 - ¥77,000 空室予定
-
男女比:
女性男性
-
外国人率:
外国人 日本人
-
年代:
10〜29歳 30〜49歳 50歳以上
APARTMENT
オークアパートメント王子
【※2026年1月31日に当物件は閉鎖となります。ご入居者様は2026年1月31日までにご退去いただきますよう、ご注意ください。】JR京浜東……
東京都北区豊島
東京メトロ南北線 / 王子 15分
入居条件:
女性 男性
- 礼金なし
- 敷金なし
- 保証金なし
- 仲介手数料なし
- 保証人不要
- 保証会社不要
- 外国人入居可
- 家具・家電付き
- マンスリー
2名以上入居可部屋あり
水回り付き個室あり
¥70,000 - ¥72,000 空室
-
男女比:
女性男性
-
外国人率:
外国人 日本人
-
年代:
10〜29歳 30〜49歳 50歳以上
SHAREHOUSE
フローラガーデン麻布
東京メトロ南北線・都営大江戸線の麻布十番駅から徒歩9分の南麻布にある女性専用シェアハウス。フローラガーデン麻布は、親しみやすいオシャレな麻布……
東京都港区南麻布
東京メトロ南北線 / 麻布十番 9分
入居条件:
女性
- 礼金なし
- 敷金なし
- 保証金なし
- 仲介手数料なし
- 保証人不要
- 保証会社不要
- 外国人入居可
- 女性専用物件
- 女性専用部屋あり
- 禁煙ハウス
- 家具・家電付き
- マンスリー
駐輪場
バイク置き場
宅配ボックス付き
庭・屋上・テラスつき
禁煙ハウス
2名以上入居可部屋あり
¥93,000 - ¥108,000 満室
-
男女比:
女性男性
-
外国人率:
外国人 日本人
-
年代:
10〜29歳 30〜49歳 50歳以上
JR京浜東北・根岸線のシェアハウス
APARTMENT
フェニックス横浜関内BAY MARKS
神奈川県横浜市不老町3丁目
入居条件:
女性 男性
- 敷金なし
- 保証金なし
- 保証人不要
- 外国人入居可
- 家具・家電付き
- 最低契約期間:1年
宅配ボックス付き
水回り付き個室あり
¥97,000 - ¥97,000 空室予定
APART & SHAREHOUSE
上野RYOTEI福井
山手線鶯谷駅徒歩10分、メトロ日比谷線入谷駅徒歩7分の好立地!! 上野RYOTEI 福井は、代々続く老舗料亭を改装したシェアハウスで、そのオ……
東京都台東区根岸
JR京浜東北線 / 鶯谷 10分
入居条件:
女性 男性
- 礼金なし
- 敷金なし
- 保証金なし
- 仲介手数料なし
- 保証人不要
- 保証会社不要
- 外国人入居可
- 家具・家電付き
- マンスリー
2名以上入居可部屋あり
水回り付き個室あり
¥55,000 - ¥150,000 満室
-
男女比:
女性男性
-
外国人率:
外国人 日本人
-
年代:
10〜29歳 30〜49歳 50歳以上
APARTMENT
ユーレジデンス大森
東京都品川区南大井6丁目
入居条件:
女性 男性
- 敷金なし
- 保証金なし
- 保証人不要
- 外国人入居可
- 家具・家電付き
- 最低契約期間:1年
宅配ボックス付き
水回り付き個室あり
¥125,000 - ¥129,000 空室予定
-
外観 おしゃれな外観です
-
エントランス 毎日通るエントランスはこのようになっています
1301
-
居間 居間です
![]()
-
居間 ゆったりとしたリビングです
![]()
-
キッチン キッチンでお料理をお楽しみください
![]()
-
キッチン 使いやすいキッチンです
![]()
-
風呂 日々の暮らしに欠かせないお風呂です
![]()
-
トイレ コンパクトで使いやすいトイレです
![]()
-
洗面 スペースが確保できる洗面所です
![]()
-
収納 便利な収納スペースです
![]()
-
収納 大きなものも収納できそうです
![]()
-
設備
![]()
-
設備
![]()
-
その他画像 セキュリティ
![]()
-
その他画像 セキュリティ
![]()
-
その他画像 その他共有部分
![]()
-
その他画像 その他共有部分
![]()
-
その他画像 その他共有部分
![]()
-
その他画像 落ち着いたロビーです
![]()
0部屋がヒットしました
北区のエリア情報
エリアの概要
東京都北区は、JR埼京線やJR東北本線、埼玉鉄道線、東京メトロ南北線など多数の鉄道を利用でき首都圏にもアクセスしやすく通勤も快適なエリアです。大きく分けると滝野川エリアと王子エリア、赤羽エリアに分けられますが、どのエリアにも昔ながらの商店街が健在で、下町情緒にもあふれています。北区は約30万人の人々が生活する巨大な都市で、オフィスなども存在していますが、区内から区外への通勤者が約10万人、区外から区内への通勤者は約7万6千人で、夜間の方が人口が増加する地域です。赤羽駅など主要駅の周辺人は大きなスーパーマーケットや百貨店なども充実していて買い物環境も良好で暮らしやすいエリアです。近くには荒川や隅田川が流れ、そのほとりには公園などもあり都会の喧騒を忘れられるスポットも多数あります。
見どころ
東京都北区には様々な見どころがあります。「旧古河庭園」は東京メトロ南北線の西ヶ原駅の近くにあるバラが有名な洋館の庭園です。夜にはライトアップも行われて幻想的な雰囲気も楽しむことができます。「飛鳥山公園」は都電荒川線の飛鳥山駅の近くの公園で、「北区飛鳥山博物館」や「渋沢資料館」、「紙の博物館」などがあり、縄文時代・弥生時代・古墳時代などに関する展示を見学できます。紙の博物館ではお札など色々な紙の製法を学習することが可能です。また、王子駅の近くの「音無親水公園」では都会の喧騒を忘れて自然を堪能することができます。静かな雰囲気の公園で、春には見事なサクラ並木やアジサイなどを楽しむことができるので、地元の人に愛される花見スポットとなっています。
生活スタイル
東京都北区は、総人口34万人の巨大都市ですが、昼夜人口比率を談笑すると昼は夜の0.93倍となり、夜間の方が人口が多い地域で、首都圏に通勤するサラリーマンなどのベットタウン的な位置づけの歳ということができます。主要駅の近くには百貨店や大きなスーパーマーケット、ショッピングモールなどが充実していて、買い物環境が良好なエリアです。また、赤羽駅の近くの「赤羽中央商店街」や王子駅の近くの「王子銀座商店街」、田端駅の近くの「田端通り商店街」などに代表されるような昔ながらの商店街が豊富に残っているエリアです。昭和の雰囲気がある商店街での買い物も楽しむことができます。また、商店街の中には庶民的な居酒屋さんや食堂なども多くあるため、比較的リーズナブルに食事やお酒も楽しめる地域です。
王子駅のエリア情報
王子駅は東京都北区にあり、JR京浜東北線、東京メトロ南北線、都電荒川線が走っています。駅の誕生は1883年で、日本全国にある駅の中でも特に古い歴史を有しています。1915年に現在の都電荒川線の停留所が設置され、1991年には南北線が開業しました。JRのホームは1番線と2番線のみで、1番線が京浜東北線の北行き、2番線が南行きです。南北線も2番線まであり、1番線が赤羽岩淵駅方面行き、2番線が目黒方面行き、そして都電荒川線は2面2線の地上駅です。1日あたりの乗車人数はJRが6万5,000人弱で、東京メトロの乗降客数は6万3,000人ほどとなっています。利用人数は緩やかな右肩上がりとなっており、ファミリー世帯もこの地域に流入傾向にあります。王子駅からは路線バスが10路線以上、さらに深夜急行バスや高速バスも出ており、電車とバスを使った交通アクセスの利便性がとても高いといわれています。
近隣の駅から探す
最近閲覧した物件
-
APARTMENT
Log Shinagawa Surfside
入居条件: 女性 男性 外国人¥119,000 - ¥130,000
-
APARTMENT
アンベリール王子
入居条件: 女性 男性 外国人¥104,500 - ¥135,000
-
APARTMENT
フェニックス横浜関内BAY MARKS
入居条件: 女性 男性 外国人¥97,000 - ¥97,000
-
APARTMENT
クレヴィスタ品川西大井Ⅱ
入居条件: 女性 男性 外国人¥118,000 - ¥123,000
-
APARTMENT
リヴィアス神戸SOLEIL
入居条件: 女性 男性 外国人¥75,000 - ¥75,000








































