APARTMENT
Azest Horikiri-Shobuen II
Management company OAKHOUSE as Agent (Conditions of transaction : Brokerage)
Translation tool is used for part or all of the text.
Last updated 2025-11-09 14:31
Property Overview
Access
- Address 3 Horikiri, Katsushika-ku, Tokyo
-
Station1:
Keisei line /
3 min walk to HorikirishobuenStation
Station2: Tobu-Isesaki line / 18 min walk to HorikiriStation
Available discounts and special offers
Check your available PAO(※Login necessary)
Smart Membership not available for this property. The FIX plan cannot be used at this property PAO points cannot be used at this property
Initial payment and terms
Building and management information
- Building outline 8-story building Year Built:2019/07 Parking nil
- Surroundings
- In-house management number 348484
Shared facilities
Facilities in the shared spaces
Security measures
Outdoor facilities
Room Availability
605 | Vacancy
| Monthly fee | Rent | ¥89,000 | |
|---|---|---|---|
| Maintenance fee・Management fee | ¥12,000 | ||
| Premier Desk (tax included/2 years) | 16,500yen | Room cleaning fee at the time of contract (tax included) | 55,000yen |
| Brokerage fees | 1.1 months of rent. | ||
| Guarantor company |
Subscription required Casa *The screening will be done by CASA. CASA] 70% of the monthly gross rent (minimum guarantee fee 20,000 yen)/monthly guarantee fee, 1.5% of the monthly gross rent [Arc Rent Guarantee] 40% of the monthly gross rent/ 10,000 yen after the next year*Debit |
||
| Key replacement fee | 38,500yen | ||
| Estimated initial cost |
¥409,900
※)Estimate based on a contract date of the first day of the month. ※)The guarantor fee for the guarantor company is not included. |
||
| Contract period | 2 year and 0 month | ||
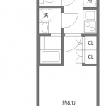
| Remarks | Azest Horikiri-Shobuen: Conveniently located near Horikiri-Shobuen station. Storage space includes a closet and a shoe box, which is useful for storing clothes and daily necessities. Room facilities include a bathroom dryer and a separate washroom, making the room comfortable and easy to spend time in. Why don't you look for a room that matches your particular needs in Katsushika-ku or near Horikiri-Shobuen? We will do our best to support your room search. | ||
- Man / Woman
Sunlight
Facing window:Notrh
Water facilities
-
Toilet
-
Bathroom
-
Separated bath and toilet
-
Shower
-
Washlet
-
Separate basin
Household appliances
-
Air conditioner
Furniture
-
Wooden flooring
-
Storage
Outdoor facilities
-
Balcony
Internet
-
Internet available
- Internet usage fee: free
701 | Vacancy
| Monthly fee | Rent | ¥90,000 | |
|---|---|---|---|
| Maintenance fee・Management fee | ¥12,000 | ||
| Premier Desk (tax included/2 years) | 16,500yen | Room cleaning fee at the time of contract (tax included) | 55,000yen |
| Brokerage fees | 1.1 months of rent. | ||
| Guarantor company |
Subscription required Casa *The screening will be done by CASA. CASA] 70% of the monthly gross rent (minimum guarantee fee 20,000 yen)/monthly guarantee fee, 1.5% of the monthly gross rent [Arc Rent Guarantee] 40% of the monthly gross rent/ 10,000 yen after the next year*Debit |
||
| Key replacement fee | 38,500yen | ||
| Estimated initial cost |
¥413,000
※)Estimate based on a contract date of the first day of the month. ※)The guarantor fee for the guarantor company is not included. |
||
| Contract period | 2 year and 0 month | ||
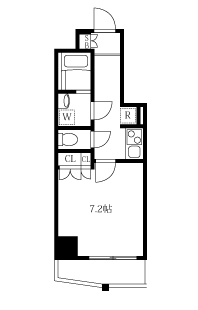
| Remarks | This is the best part of Azest Horikiri-Shobuen. The common area is very well equipped with a home delivery box, 24-hour garbage disposal, and so on. Security features include a TV intercom system and auto-locks, so you can live with peace of mind. There is an internet connection in this property. If you are looking for rental information in Katsushika-ku area, please leave it to us. Please feel free to contact us so that we can support you to have a comfortable life. | ||
- Man / Woman
- Foreign Residents Allowed
Sunlight
Facing window:Notrh
Location
-
Corner room
Water facilities
-
Toilet
-
Bathroom
-
Separated bath and toilet
-
Shower
-
Washlet
-
Separate basin
Household appliances
-
Air conditioner
Furniture
-
Wooden flooring
-
Storage
Outdoor facilities
-
Balcony
Internet
-
Internet available
- Internet usage fee: free
Diagram
Map
Management company
-
Company name
OAKHOUSE as Agent
1-6, Shinogawamachi, Shinjuku-ku, Tokyo 162-0814
- Corporate Use OAKHOUSE will show you this apartment.
Nearby Houses
Katsushika share houses
APARTMENT
Rufre Premium Shinkoiwa
2 Shinkoiwa, Katsushika-ku, Tokyo
Move in conditions:
Female Male
- No security deposit
- No Guarantor Deposit
- No guarantor
- Foreign Residents Allowed
- Furnished
- Minimum contract period: 1 year
Delivery box
Private room with bathroom,
kitchen, or toilet facilities
¥120,000 - ¥120,000 Vacancy
APARTMENT
Exelan Higashi Tateishi
3, Higashi-Tateishi, Katsushika-ku, Tokyo
Move in conditions:
Female Male
- No security deposit
- No Guarantor Deposit
- No guarantor
- Foreign Residents Allowed
- Furnished
- Minimum contract period: 1 year
Private room with bathroom,
kitchen, or toilet facilities
¥83,000 - ¥93,000 Vacancy
APARTMENT
Cle Vista Shibamata
3 Shibamata, Katsushika-ku, Tokyo
Move in conditions:
Female Male
- No security deposit
- No Guarantor Deposit
- No guarantor
- Foreign Residents Allowed
- Furnished
- Minimum contract period: 1 year
Delivery box
Rooms for 2 or more available
Private room with bathroom,
kitchen, or toilet facilities
¥96,000 - ¥102,000 Vacancy
Horikirishobuen Station share houses
SHAREHOUSE
HORIKIRI RETRO HOUSE
Horikiri Retro has spacious rooms with storage. Enjoy the downtown fee……
Tokyo-to Katsushika-ku Horikiri
Keisei line / Horikiri Shobuen 10minutes
Move in conditions:
Female Male
- No Key Money
- No security deposit
- No Guarantor Deposit
- No brokerage Fee
- No guarantor
- No guarantor company
- Foreign Residents Allowed
- Non-Smoking house
- Furnished
- Monthly
Non-Smoking house
Rooms for 2 or more available
¥34,000 - ¥52,000 Vacancy soon
-
Gender:
FemaleMale
-
Nationality:
Foreigner Japanese
-
Age:
10~29 30~49 Over 50
HOTEL STAY
Residential Hotel Bevel Tokyo
Katsushika-ku, Tokyo
Keisei line / Horikiri Shobuen 10minutes
- No guarantor
within 5 minutes to station
Bath tub
Rooms for 2 or more available
¥130,000 - ¥130,000
APARTMENT
Renai Court Ohanajaya
2 Takaracho, Katsushika-ku, Tokyo
Move in conditions:
Female Male
- No security deposit
- No Guarantor Deposit
- No guarantor
- Foreign Residents Allowed
- Furnished
- Minimum contract period: 1 year
Private room with bathroom,
kitchen, or toilet facilities
¥71,000 - ¥71,000 Vacancy
Tobu-Isesaki line share houses
APARTMENT
Stage Grande Takenotsuka
4 Takenotsuka, Adachi-ku, Tokyo
Move in conditions:
Female Male
- No security deposit
- No Guarantor Deposit
- No guarantor
- Foreign Residents Allowed
- Furnished
- Minimum contract period: 1 year
Delivery box
Private room with bathroom,
kitchen, or toilet facilities
¥111,000 - ¥153,000 Vacancy
APARTMENT
Log Asakusa
3 Kotobuki, Taito-ku, Tokyo
Move in conditions:
Female Male
- No security deposit
- No Guarantor Deposit
- No guarantor
- Foreign Residents Allowed
- Furnished
- Minimum contract period: 1 year
Delivery box
Private room with bathroom,
kitchen, or toilet facilities
¥132,000 - ¥214,000 Vacancy
APARTMENT
Artesimo Cardo
3 Narihira, Sumida-ku, Tokyo
Move in conditions:
Female Male
- No security deposit
- No Guarantor Deposit
- No guarantor
- Foreign Residents Allowed
- Furnished
- Minimum contract period: 1 year
Delivery box
Private room with bathroom,
kitchen, or toilet facilities
¥135,000 - ¥135,000 Vacancy soon
Keisei line share houses
APARTMENT
Nishi-Nippori Flats
1 Nishinippori, Arakawa-ku, Tokyo
Move in conditions:
Female Male
- No security deposit
- No Guarantor Deposit
- No guarantor
- Foreign Residents Allowed
- Furnished
- Minimum contract period: 1 year
Bicycle parking
Scooter and motorcycle parking
Delivery box
Private room with bathroom,
kitchen, or toilet facilities
¥170,000 - ¥192,000 Vacancy
APARTMENT
Renai Court Ohanajaya
2 Takaracho, Katsushika-ku, Tokyo
Move in conditions:
Female Male
- No security deposit
- No Guarantor Deposit
- No guarantor
- Foreign Residents Allowed
- Furnished
- Minimum contract period: 1 year
Private room with bathroom,
kitchen, or toilet facilities
¥71,000 - ¥71,000 Vacancy
APARTMENT
Genovia Kyonarishi III Sky Garden
3 Tateishi, Katsushika-ku, Tokyo
Move in conditions:
Female Male
- No security deposit
- No Guarantor Deposit
- No guarantor
- Foreign Residents Allowed
- Furnished
- Minimum contract period: 1 year
Delivery box
Rooms for 2 or more available
Private room with bathroom,
kitchen, or toilet facilities
¥97,000 - ¥100,000 Vacancy
0 rooms found.
Area information of Katsushika
Area outline
Katsushika ward is in the eastern part of Tokyo's 23 wards. It borders Chiba prefecture and is the gateway between Tokyo and Chiba. Many rivers flow through this ward, such as the Arakawa, Nakagawa, and Edo rivers. Because of this, this area was extremely popular in the Edo period. Many food was grown and caught in Katsushika, contributing to its development.
Coming into the Meiji period, it was necessary to secure a lot of water for industry, so Katsushika grew into an industrial area. As a result, there are still many industrial manufacturers, such as for steel or bricks. Recently there has been a housing boom, and many areas still retain a traditional downtown atmosphere. It is surprisingly close to the center of Tokyo, so it is easy to live here if you are looking for a livable environment.
Things to see
One of the interesting things in Katsushika is the bridges crossing all the rivers. There are 16 bridges in total, bridging Arakawa and Sumida wards, connecting to Matsudo city, or other major transportation points. The oldest is Yotsubashi, first built in 1922.
There are also many parks. There are also many museums, such as Katsushika City Museum and a museum dedicated to traditional crafts.
Lifestyle
Katsushika has many shops, stalls, and markets that have been there for many years. Compared to some other wards, it has a more "at-home" feeling, perhaps. Housing prices tend to be cheaper here.
Katsushika is planning to undertake some renewals in the future. Katsushika has also been the setting for various popular manga and movies. Katsushika will be an area to keep an eye on in the future as it grows.
Area information of HorikirishobuenStation
Horikiri Shobuen is in the Horikiri area in Katsushika ward in Tokyo, and is on the Keisei main line. It is a local stop only, but it is just 10 minutes to Nippori station, from which you can transfer to the Yamanote line. It is also just 14 minutes to Keisei Ueno station, which is then close to Ueno station, which is a very convenient station for travel.
It is busy during rush hour, but tends to be less crowded during other parts of the day. The Keisei Town Bus can take you to Asakusa, Kameari, Shin-Koiwa, or Ayase. There are also 6 shopping streets in the area, each with their own unique atmosphere. There are many products made in factories in the town as well, such as margarine and other food products.
Search by Nearby Stations
Keisei line(509)
Machiya Senjuohashi Horikirishobuen Ohanajaya Aoto
Recently viewed properties





















































