APARTMENT
giobluminous
Brokered Property
Translation tool is used for part or all of the text.
Last updated 2026-05-19 19:00
Property Overview
Access
- Address 7 Ginza, Chuo-ku, Tokyo
-
Station1:
TokyoMetro-Ginza line /
4 min walk to GinzaStation
Station2: TokyoMetro-Hibiya line / 4 min walk to GinzaStation
Station3: TokyoMetro-Marunouchi line / 4 min walk to GinzaStation
Station4: TokyoMetro-Hibiya line / 5 min walk to Higashi GinzaStation
Station5: Toei-Asakusa line / 5 min walk to Higashi GinzaStation
Available discounts and special offers
Check your available PAO(※Login necessary)
Smart Membership not available for this property. The FIX plan cannot be used at this property PAO points cannot be used at this property
Initial payment and terms
Building and management information
- Building outline 13-story building Year Built:2006/09 Parking nil
- Surroundings
- In-house management number 393447
Shared facilities
Room Availability
704 | Vacancy
| Monthly fee | Rent | ¥196,000 | |
|---|---|---|---|
| Maintenance fee・Management fee | ¥9,000 | ||
| Premier Desk (tax included/2 years) | 22,000yen | Room cleaning fee at the time of contract (tax included) | 44,000yen |
| Brokerage fees | 1.1 months of rent. | ||
| Guarantor company |
Subscription required Epos Card |
||
| Key replacement fee | 38,500yen | ||
| Estimated initial cost |
¥730,100
※)Estimate based on a contract date of the first day of the month. ※)The guarantor fee for the guarantor company is not included. |
||
| Contract period | 2 year and 0 month | ||
| Remarks | Security measures are also well taken with auto-locks, TV intercom, and other security features. There is an independent wash stand so that you can do your makeup and hair without worrying about the temperature and humidity even after taking a bath. A delivery box is provided in the common area, eliminating the need to receive packages in person. Please feel free to contact us if you have any questions about Chuo Ward or the Ginza area. We are sure to find a great room that suits you. | ||
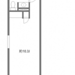
- Man / Woman
Sunlight
Facing window:Southeast
Water facilities
-
Toilet
-
Bathroom
-
Separated bath and toilet
-
Shower
-
Washlet
-
Separate basin
Household appliances
-
Air conditioner
Furniture
-
Wooden flooring
-
Storage
Outdoor facilities
-
Balcony
Internet
-
Internet available
- Internet usage fee: free
Diagram
Map
Management company
-
Company name
OAKHOUSE as Agent
1-6, Shinogawamachi, Shinjuku-ku, Tokyo 162-0814
- Corporate Use OAKHOUSE will show you this apartment.
Nearby Houses
Chuo share houses
APARTMENT
Open Bloom Higashi-Nihonbashi
¥154,000 - ¥162,000 Vacancy
25.37㎡〜 / 10-story building
- Furnished
- No security deposit
APARTMENT
¥149,000 - ¥234,000 Vacancy
27.56㎡〜 / 15-story building
- No Key Money
APARTMENT
¥265,000 - ¥286,000 Vacancy
50.34㎡〜 / 13-story building
TokyoMetro-Ginza line share houses
Venus Shibuya
¥327,000 - ¥327,000 Vacancy
44.34㎡〜 / 12-story building / TokyoMetro-Ginza line Shibuya 7minutes
- Monthly
- Furnished
- No security deposit
- No Key Money
APARTMENT
OAK TERRACE SHIBUYA
¥163,000 - ¥173,000 Full
16.30㎡〜 / 11-story building / Keio-Inokashira line Shinsen 4minutes
- Monthly
- Furnished
- No security deposit
- No Key Money
APARTMENT
Yushima Residence
¥199,000 - ¥210,000 Vacancy
42.57㎡〜 / 5-story building
- No security deposit
- No Key Money
TokyoMetro-Hibiya line share houses
APARTMENT
Coop Nomura Roppongi 2
¥180,000 - ¥180,000 Full
24.55㎡〜 / 7-story building / TokyoMetro-Namboku line Roppongi Itchome 1minutes
- Monthly
- Furnished
- No security deposit
- No Key Money
APARTMENT
GRANSITE NAKAMEGURO
¥156,000 - ¥169,000 Vacancy
25.44㎡〜 / 11-story building
- No Key Money
APARTMENT
VERA HEIGHTS NIHONBASHI
¥115,000 - ¥115,000 Full
19.18㎡〜 / 10-story building / TokyoMetro-Hibiya line Ningyocho 4minutes
- Monthly
- Furnished
- No security deposit
- No Key Money
TokyoMetro-Marunouchi line share houses
APARTMENT
Crevista Honancho II
¥102,000 - ¥115,000 Vacancy
20.13㎡〜 / 4-story building
- Furnished
- No security deposit
APARTMENT
¥185,000 - ¥185,000 Vacancy
40.46㎡〜 / 3-story building
- No Key Money
APARTMENT
PRATIQUE YOYOGI
¥185,000 - ¥185,000 Vacancy soon
20.55㎡〜 / 4-story building / TokyoMetro-Marunouchi line Shinjuku 8minutes
- Monthly
- Furnished
- No security deposit
- No Key Money
Toei-Asakusa line share houses
APARTMENT
Open Bloom Higashi-Nihonbashi
¥154,000 - ¥162,000 Vacancy
25.37㎡〜 / 10-story building
- Furnished
- No security deposit
SHAREHOUSE
TOKYO SHARE ASAKUSA HONJO
¥63,000 - ¥64,000 Full
9.03㎡〜 / 3-story building / Toei-Asakusa line Honjo Azumabashi 5minutes
- Monthly
- Furnished
- No security deposit
- No Key Money
APARTMENT
Nissin Palace Stage Mita
¥75,000 - ¥75,000 Full
11-story building / JR-KeihinTohoku line Tamachi(Tokyo) 10minutes
0 rooms found.
Area information of Chuo
Area outline
Chuo ward lies in the center of Tokyo prefecture.
Within this ward are Nihonbashi, Yaesu, Tsukiji, Ginza, Tsukishima, and others, and it is the 2nd smallest ward after Taito ward.
There are many businesses and offices in this ward, as well as residential areas, though not many single houses. The Olympic Village will be built here, and after the Olympics are over it will be converted into apartments.
On the west side of the ward are downtowns reminiscent of the Edo period, and on the east side is land that was reclaimed from the ocean in the Edo period. Currently Chuo is divided into the Nihonbashi, Kyobashi, and Tsukishima areas.
It was an important waterway until immediately after World War II, and there are many rivers, thought some have been filled in. Still, a lot of trade is still conducted via these rivers.
Things to see
There are many diverse sightseeing spots in Chuo ward.
There are popular boat bus lines you can take along the Sumida river that can take you to Odaiba or Tokyo park.
Other popular areas are Ginza, Tsukiji, Tsukishima, and Odaiba, as well as other theaters, parks, and shopping areas.
There is also the Tokyo City Air Terminal which provides access to each airport.
Lifestyle
Though Chuo ward is the 2nd smallest ward in Tokyo, it is fully equipped with many educational institutions. There are many schools for children and young people and the ward library is used by many people.
Though there are a lot of department stores, there are also lots of supermarkets, so it is convenient to live here. There are also large hospitals, drug stores, and convenience stores.
The ward is making preparations in expectation of many people moving in after the Olympics.
There aren't that many electronics stores so you might have to go to another ward.
Still, the ward earns its name, as "Chuo" means "Central".
Search by Nearby Stations
Recently viewed properties












































